リノベ不動産 renove fudosan 日本住を、愉快に。 ローン相談、物件探し、設計・施工、入居後のインテリア提案までリノベ不動産が一貫してサポート。 WEAR_ロゴ 日本住を、愉快に。
  • リノベーション向き物件
  • 中古戸建て

茂森新町中古住宅

外観

外観

地形図等

地形図等

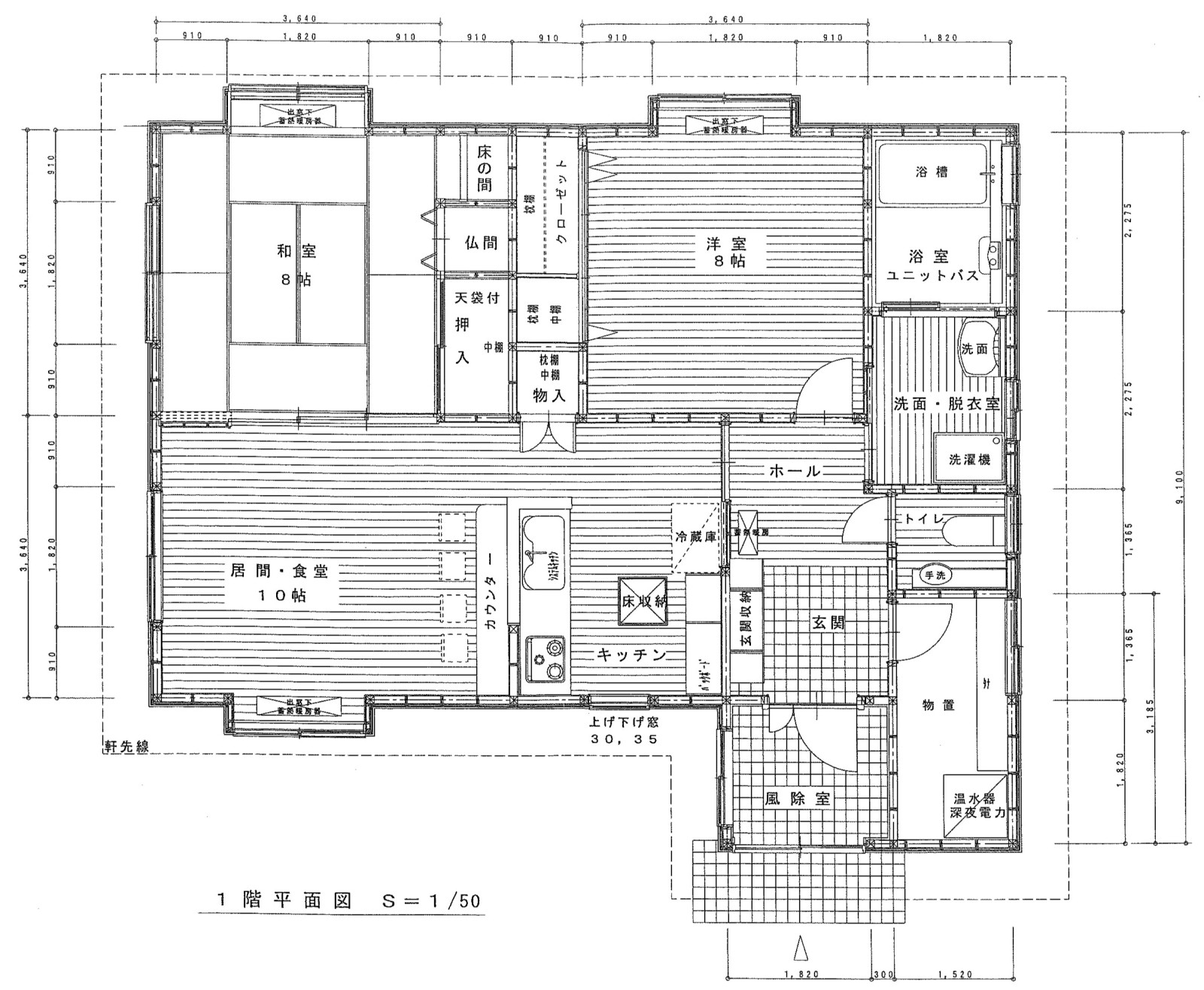
平面図

平面図

外観
地形図等
平面図
販売価格
1,500 万円
間取り
2LDK
延床面積
88.37㎡(26.73坪)
エリア
青森県弘前市
沿線・最寄駅

明るい平屋のゆとりある間取。生活動線が良く落ち着いて暮らせます。

支払額シミュレーション

茂森新町中古住宅

  • 間取り: 2LDK
  • 面積: 26.73坪

中古戸建て
販売価格

1,500万円

参考リノベ費用

500万円

提携ローン

0.8%

毎月のお支払い 54,612円

物件情報

物件名
茂森新町中古住宅
間取り図
間取り図
間取り図
築年月
2005年10月(築20年)
間取り
2LDK
接道状況
東側 公道 接道幅6.5m 接面14.5m
階数
ガス
都市ガス
販売価格
1,500万円
建ぺい率
60%
容積率
150%
地積
354.54㎡ (107.24坪)
地目
宅地
現況
取引態様
小学校区
朝陽小学校 (約1119m)
中学校区
第四中学校 (約1553m)

共通概要

種別
中古売戸建
所在地
青森県弘前市大字茂森新町3丁目
交通

構造
木造 亜鉛メッキ鋼板葺
土地権利
所有権
建物面積
1階88.37㎡ 
合計88.37㎡ 26.73坪
用途地域
1種低層
地目
宅地
都市計画
市街化区域
駐車場
有 /

物件の設備・条件

冷暖房
床暖房
セキュリティー
モニタ付インターホン
キッチン
システムキッチン
収納
クローゼット/床下収納
工法・構造・仕様
駐車場2台分
特徴
バス1坪以上
立地・環境
閑静な住宅街

広告主の会社情報

店舗名
リノベ不動産|弘前城東店
会社名
株式会社あさひほうむ
会社住所
青森県弘前市大字早稲田二丁目2番地5
会社電話番号
0172-29-3700
免許番号
建設業許可番号 青森県知事(特-7)11376 一級建築士事務所 青森県知事登録第1429号 宅地建物取引業免許番号 青森県知事(6)2807
所属団体
公益社団法人 全国宅地建物取引業保証協会会員
公益社団法人 青森県宅地建物取引業協会会員
東北地区不動産公正取引協議会加盟

情報公開日・更新予定日

情報公開日
2026/01/08
次回更新予定日
情報提供より8日以内に更新
取引条件有効期限
-

茂森新町中古住宅(青森県弘前市)のリノベーション向き中古戸建てはいかがでしたか?気になる点は資料請求や問い合わせでチェック!画像だけではわからない茂森新町中古住宅の魅力がきっと見つかります。

茂森新町中古住宅(青森県弘前市)のリノベーション向き中古戸建ての物件情報はいかがでしたか?最新の販売状況の確認やリノベーションのポイントなど、気になる点は資料請求や問い合わせで確かめることがおすすめです。画像だけではわからない茂森新町中古住宅の魅力がきっと見つかります。