リノベ不動産 renove fudosan 日本住を、愉快に。 ローン相談、物件探し、設計・施工、入居後のインテリア提案までリノベ不動産が一貫してサポート。 WEAR_ロゴ 日本住を、愉快に。
  • リノベーション済み物件
  • 中古マンション

ライオンズシティ泉

LDK

LDK

LDK

LDK

LDK

LDK

LDK

LDK

キッチン

キッチン

キッチン

キッチン

洗面室

洗面室

洗面台

洗面台

浴室

浴室

トイレ

トイレ

洋室5.7帖

洋室5.7帖

洋室4.1帖

洋室4.1帖

廊下

廊下

玄関

玄関

外観

外観

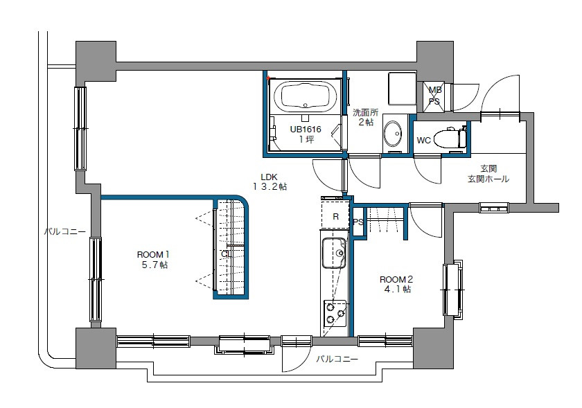
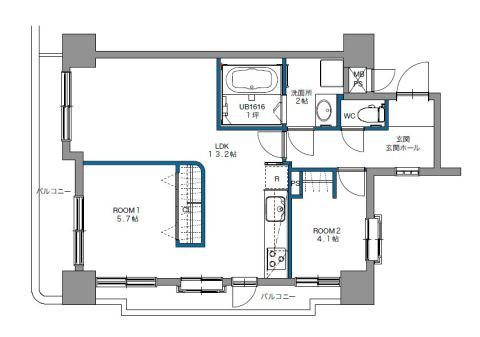
間取図

間取図

LDK
LDK
LDK
LDK
キッチン
キッチン
洗面室
洗面台
浴室
トイレ
洋室5.7帖
洋室4.1帖
廊下
玄関
外観
間取図
販売価格
2,590 万円
間取り
2 LDK
延床面積
54.29㎡(16.42坪)(壁芯)
エリア
愛知県名古屋市東区
沿線・最寄駅
名古屋市桜通線「高岳」駅 徒歩5分
黒をアクセントに使い、アール壁を取り入れたデザイナーズ物件!

支払額シミュレーション

ライオンズシティ泉

  • 間取り: 2 LDK
  • 面積: 16.42坪(壁芯)

中古マンション
販売価格

2,590万円

参考リノベ費用

500万円

提携ローン

0.5%

毎月のお支払い 80,212円

物件情報

物件名
ライオンズシティ泉
間取り図
間取り図
間取り図
築年月
1993年06月(築32年)
間取り
2 LDK
所在階/階数
14階建
ガス
都市ガス
販売価格
2,590万円
引渡
2026年01月
取引態様
一般
管理費
月額10,000円
管理形態
全部委託(日勤管理)
修繕積立金
月額20,850円
小学校区
葵小学校 (約520m)
中学校区
あずま中学校 (約1000m)

共通概要

種別
中古売マンション
所在地
愛知県名古屋市東区泉3丁目
交通
名古屋市桜通線「高岳」駅 徒歩5分
構造
SRC
土地権利
専有面積

合計54.29㎡ 16.42坪 (壁芯)
用途地域
駐車場
空無 /

物件の設備・条件

設備・機能
室内洗濯機置場/エレベータ/都市ガス/洗濯機置場/全居室フローリング/角部屋/デザイナーズ/全室フローリング
セキュリティー
オートロック
収納
収納スペース/クローゼット/全居室収納
バルコニー・庭
2面バルコニー
キッチン
食器洗浄乾燥機/システムキッチン
特徴
管理人日勤/デザイナーズ
立地・環境
角部屋

広告主の会社情報

店舗名
リノベ不動産|名古屋庄内通店
会社名
株式会社タカハラコーポレーション
会社住所
愛知県名古屋市西区又穂町三丁目 20 番地 永安ビル1A
会社電話番号
0120-253-884
免許番号
宅地建物取引業:愛知県知事(1)第25223号 建築工事業:愛知県知事(般-7)第106129号
所属団体
(公社)愛知県宅地建物取引業協会
(公社)全国宅地建物取引業保証協会

情報公開日・更新予定日

情報公開日
2025/11/10
次回更新予定日
情報提供より8日以内に更新
取引条件有効期限
-
【内見会】リノベーション比較見学ツアー

【内見会】リノベーション比較見学ツアー

  • リノベ相談会
  • 物件相談
  • 見学ツアー
中古を買ってリノベーション まるわかりセミナー

中古を買ってリノベーション まるわかりセミナー

  • リノベ相談会
  • 物件相談
  • ローンセミナー

ライオンズシティ泉(愛知県名古屋市東区)のリノベーション済み中古マンションはいかがでしたか?気になる点は資料請求や問い合わせでチェック!画像だけではわからないライオンズシティ泉の魅力がきっと見つかります。

ライオンズシティ泉(愛知県名古屋市東区)のリノベーション済み中古マンションの物件情報はいかがでしたか?最新の販売状況の確認やリノベーションのポイントなど、気になる点は資料請求や問い合わせで確かめることがおすすめです。画像だけではわからないライオンズシティ泉の魅力がきっと見つかります。