リノベ不動産 renove fudosan 日本住を、愉快に。 ローン相談、物件探し、設計・施工、入居後のインテリア提案までリノベ不動産が一貫してサポート。 WEAR_ロゴ 日本住を、愉快に。
  • リノベーション向き物件
  • 中古戸建て

八王子市館町

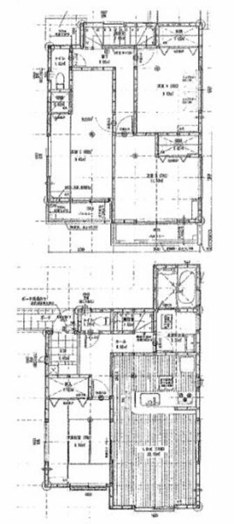
間取り 季節の移ろいを身近に感じる、自然豊かな閑静な住宅街

間取り 季節の移ろいを身近に感じる、自然豊かな閑静な住宅街

周辺 京王電鉄高尾線「狭間」駅迄2040m

周辺 京王電鉄高尾線「狭間」駅迄2040m

周辺 フードワンゆりのき台店迄950m

周辺 フードワンゆりのき台店迄950m

周辺 セブンイレブン 八王子館町店迄1010m

周辺 セブンイレブン 八王子館町店迄1010m

周辺 井脇医院迄1520m

周辺 井脇医院迄1520m

周辺 殿入北公園迄390m

周辺 殿入北公園迄390m

周辺 八王子市立館中学校迄1790m

周辺 八王子市立館中学校迄1790m

周辺 八王子市立横山第一小学校迄1130m

周辺 八王子市立横山第一小学校迄1130m

周辺 共励第三保育園迄1790m

周辺 共励第三保育園迄1790m

間取り 季節の移ろいを身近に感じる、自然豊かな閑静な住宅街
周辺 京王電鉄高尾線「狭間」駅迄2040m
周辺 フードワンゆりのき台店迄950m
周辺 セブンイレブン 八王子館町店迄1010m
周辺 井脇医院迄1520m
周辺 殿入北公園迄390m
周辺 八王子市立館中学校迄1790m
周辺 八王子市立横山第一小学校迄1130m
周辺 共励第三保育園迄1790m
販売価格
2,580 万円
間取り
4 LDK
延床面積
エリア
東京都八王子市
沿線・最寄駅
京王高尾線「めじろ台」駅 バス10分 徒歩14分
京王高尾線「高尾」駅 バス9分 徒歩17分
敷地130.50m2、建物100.19m2のゆとりある4LDK中古戸建です。土地にも建物にも十分な広さが確保されており、ご家族それぞれのプライベート空間を大切にしながら、のびのびと暮らしていただけます。リビングを中心にゆとりある室内設計となっており、日々の生活動線も快適。部屋数も敷地も妥協したくない方におすすめの一邸です。広さが生み出す開放感と安心感を、ぜひ現地にてご体感ください。皆様のお問い合わせを心よりお待ちしております。 平坦地、整形地、分譲地内、2沿線以上利用可、急行停車駅、始発駅、駐車場2台分、駐車場3台分以上、下水道、電気、対面式キッチン、システムキッチン、オープンキッチン、浄水器、追焚き給湯、浴室乾燥機、浴室暖房、浴室に窓、バス1坪以上、温水洗浄便座、トイレ2ヶ所、シャワー付き洗面化粧台、独立洗面台、室内洗濯機置場、全居室収納スペース、床下収納、バルコニー、全居室2面採光、2面採光、フローリング、複層ガラス、ペアガラス、ダブルロックドア、ディンプルキー、TVインターホン、火災警報器(報知機)、見学可
★敷地130m2超、建物100m2超のゆとり4LDK。 ★土地も建物も、ゆとりある一戸建て。 ★130.50m2の敷地に描く、100.19m2の快適空間。 ★部屋数も敷地も、妥協しない。 ★ゆとりを求める方へ。

■物件のご紹介 事前にご希望条件等を教えてくだされば、掲載物件以外の周辺物件情報も多数ご紹介が可能です。 お問い合わせメールに箇条書きでかまいませんので(お探しのエリア・ご予算・ご希望間取りなど)をお知らせください。 ———【住宅ローン事前無料相談会開催中!】———  ・日程:ご相談ください。 ・開催時間:10:00〜 ■ご予約方法 ・受付: ・メールの場合:【資料請求】ボタンをクリックでお問い合わせください。 事前に鍵の手配や売主様とスケジュールの調整が必要な物件がございます。 お早目にご連絡をいただけるとご案内がスムーズです。

物件情報

物件名
八王子市館町
築年月
2018年11月(築7年)
間取り
4 LDK
接道状況
北東側 公道 接道幅8.2m 接面5m
階数
2階建
販売価格
2,580万円
建ぺい率
40%
容積率
80%
地積
130.5㎡ (公簿)
地目
宅地
現況
引渡
2026年02月
取引態様
媒介

共通概要

種別
中古売戸建
所在地
東京都八王子市館町1678-9
交通
京王高尾線「めじろ台」駅 バス10分 徒歩14分
京王高尾線「高尾」駅 バス9分 徒歩17分
構造
木造
土地権利
所有権
用途地域
1種低層
地目
宅地
駐車場
有 /

物件の設備・条件

設備・機能
上水道/下水道/都市ガス/複層ガラス/フローリング
バルコニー・庭
バルコニー
キッチン
IHクッキングヒータ/浄水器/システムキッチン/ガスコンロ付
セキュリティー
モニタ付インターホン
収納
床下収納/全居室収納

会社情報

商号
朝日土地建物株式会社 八王子支店
会社住所
東京都八王子市10-3 安嶋中央ビル4F
会社電話番号
0426424311
免許番号
国土交通大臣(9)第3744号

情報公開日・更新予定日

情報公開日
2026/02/20
次回更新予定日
情報提供より8日以内に更新
取引条件有効期限
-

情報提供元:ミノリノ
画像提供元:ミノリノ
※各種情報と現状に差異がある場合は、現状優先となります。詳細は取扱店舗までご確認ください。

ファイナンシャルプランナー相談で分かる4つのポイント!!

ファイナンシャルプランナー相談で分かる4つのポイント!!

  • リノベ相談会
  • 物件相談
  • ローンセミナー
  • その他
専門のファイナンシャルプランナー相談「お客様の声」!!

専門のファイナンシャルプランナー相談「お客様の声」!!

  • リノベ相談会
  • 物件相談
  • ローンセミナー
  • その他

八王子市館町(東京都八王子市)のリノベーション向き中古戸建てはいかがでしたか?気になる点は資料請求や問い合わせでチェック!画像だけではわからない八王子市館町の魅力がきっと見つかります。

八王子市館町(東京都八王子市)のリノベーション向き中古戸建ての物件情報はいかがでしたか?最新の販売状況の確認やリノベーションのポイントなど、気になる点は資料請求や問い合わせで確かめることがおすすめです。画像だけではわからない八王子市館町の魅力がきっと見つかります。