リノベ不動産 renove fudosan 日本住を、愉快に。 ローン相談、物件探し、設計・施工、入居後のインテリア提案までリノベ不動産が一貫してサポート。 WEAR_ロゴ 日本住を、愉快に。
  • リノベーション済み物件
  • 中古マンション

秀和第2奥沢レジデンス

販売価格
4,999 万円
間取り
2LDK
延床面積
54.22㎡(16.4坪)(壁芯)
エリア
東京都世田谷区
沿線・最寄駅
東急池上線「石川台」駅 徒歩9分
東急大井町線「緑が丘」駅 徒歩10分
~奥沢の閑静な住宅街~南向きにつき陽当り良好・開放感のある眺望

物件情報

物件名
秀和第2奥沢レジデンス
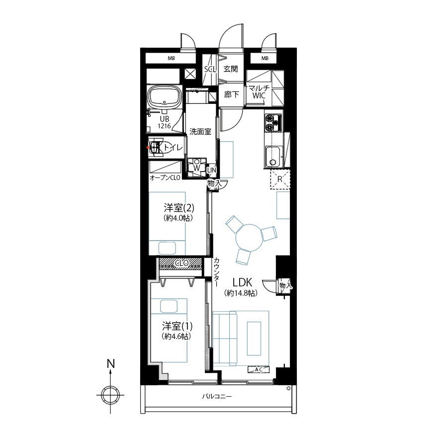
間取り図
間取り図
間取り図
築年月
1970年08月(築55年)
間取り
2LDK
所在階/階数
4階  /  8階建
販売価格
4,999万円(税込)
引渡
2026年01月
取引態様
媒介
管理費
月額14,400円
管理形態
全部委託(常駐管理)
修繕積立金
月額13,100円
小学校区
東玉川小学校 (約190m)
中学校区
奥沢中学校 (約383m)

共通概要

種別
中古売マンション
所在地
東京都世田谷区奥沢1丁目
交通
東急池上線「石川台」駅 徒歩9分
東急大井町線「緑が丘」駅 徒歩10分
構造
RC
土地権利
所有権
専有面積

合計54.22㎡ 16.4坪 (壁芯)
用途地域
1種低層
駐車場
有 / 月額22,000円
※空要確認
販売戸数
1戸

物件の設備・条件

設備・機能
室内洗濯機置場/エレベータ/全居室フローリング/可動間仕切り/照明器具付き/24時間換気システム
バス・トイレ・洗面所
追焚機能/浴室乾燥機/洗髪洗面化粧台/温水洗浄便座
収納
収納スペース/クローゼット/Wクロゼット/全居室収納/シューズボックス
冷暖房
エアコン
共用設備
宅配BOX
キッチン
食器洗浄乾燥機/システムキッチン/3口以上コンロ/グリル
家具・家電・照明
照明器具/間接照明/ダウンライト
立地・環境
日当り良好/閑静な住宅街
特徴
管理人常駐
工法・構造・仕様
24時間換気システム

広告主の会社情報

店舗名
リノベ不動産|渋谷並木橋店
会社名
株式会社エグジスタンス
会社住所
東京都渋谷区東1-26-30 SHIBUYA EAST BLDG.3F
会社電話番号
0800-888-1888
免許番号
宅地建物取引業 東京都知事(4)第90589号
所属団体

情報公開日・更新予定日

情報公開日
2026/01/08
次回更新予定日
情報提供より8日以内に更新
取引条件有効期限
-
ファイナンシャルプランナー相談で分かる4つのポイント!!

ファイナンシャルプランナー相談で分かる4つのポイント!!

  • リノベ相談会
  • 物件相談
  • ローンセミナー
  • その他
専門のファイナンシャルプランナー相談「お客様の声」!!

専門のファイナンシャルプランナー相談「お客様の声」!!

  • リノベ相談会
  • 物件相談
  • ローンセミナー
  • その他

秀和第2奥沢レジデンス(東京都世田谷区)のリノベーション済み中古マンションはいかがでしたか?気になる点は資料請求や問い合わせでチェック!画像だけではわからない秀和第2奥沢レジデンスの魅力がきっと見つかります。

秀和第2奥沢レジデンス(東京都世田谷区)のリノベーション済み中古マンションの物件情報はいかがでしたか?最新の販売状況の確認やリノベーションのポイントなど、気になる点は資料請求や問い合わせで確かめることがおすすめです。画像だけではわからない秀和第2奥沢レジデンスの魅力がきっと見つかります。