リノベ不動産 renove fudosan 日本住を、愉快に。 ローン相談、物件探し、設計・施工、入居後のインテリア提案までリノベ不動産が一貫してサポート。 WEAR_ロゴ 日本住を、愉快に。
  • リノベーション済み物件
  • 中古マンション

セントラル三田

販売価格
12,000 万円
間取り
3LDK
延床面積
87.8㎡(26.55坪)(壁芯)
エリア
東京都港区
沿線・最寄駅
都営大江戸線「麻布十番」駅 徒歩10分
都営三田線「白金高輪」駅 徒歩9分
「麻布十番」・「白金高輪」、ルーフバルコニーのあるメゾネット住戸

物件情報

物件名
セントラル三田
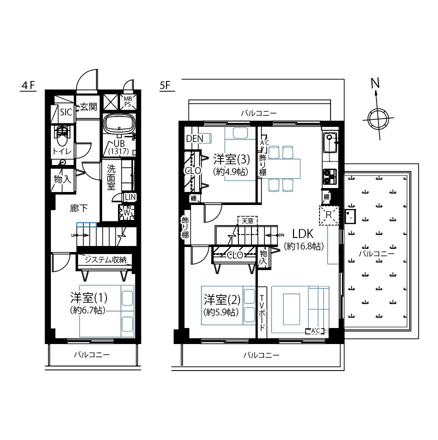
間取り図
間取り図
間取り図
築年月
1978年11月(築47年)
間取り
3LDK
所在階/階数
4階  /  5階建
販売価格
12,000万円(税込)
引渡
2025年12月
取引態様
媒介
管理費
月額10,000円
管理形態
全部委託(巡回管理)
修繕積立金
修繕積立金無し
小学校区
赤羽小学校 (約750m)
中学校区
三田中学校 (約850m)

共通概要

種別
中古売マンション
所在地
東京都港区三田2丁目
交通
都営大江戸線「麻布十番」駅 徒歩10分
都営三田線「白金高輪」駅 徒歩9分
構造
RC
土地権利
所有権
専有面積

合計87.8㎡ 26.55坪 (壁芯)
用途地域
1種中高
駐車場
有 / 月額35,000円
※空要確認
販売戸数
1戸

物件の設備・条件

設備・機能
室内洗濯機置場/給湯/全居室フローリング/角部屋/メゾネット/照明器具付き
バス・トイレ・洗面所
追焚機能/浴室乾燥機/洗髪洗面化粧台/温水洗浄便座/浴室暖房
収納
収納スペース/クローゼット/全居室収納/シューズWIC
冷暖房
エアコン/エアコン2台以上
バルコニー・庭
3面バルコニー
キッチン
食器洗浄乾燥機/システムキッチン/3口以上コンロ/2WAYキッチン/グリル
家具・家電・照明
照明器具/間接照明/ダウンライト
立地・環境
日当り良好/角部屋/3面採光
工法・構造・仕様
外観タイル張り/最上階
特徴
事務所使用可/管理人巡回

広告主の会社情報

店舗名
リノベ不動産|渋谷並木橋店
会社名
株式会社エグジスタンス
会社住所
東京都渋谷区東1-26-30 SHIBUYA EAST BLDG.3F
会社電話番号
0800-888-1888
免許番号
宅地建物取引業 東京都知事(4)第90589号
所属団体

情報公開日・更新予定日

情報公開日
2025/12/24
次回更新予定日
情報提供より8日以内に更新
取引条件有効期限
-
【オンライン】リノベってなに?まるわかりセミナー 

【オンライン】リノベってなに?まるわかりセミナー 

  • リノベ相談会
  • 物件相談
  • ローンセミナー
【オンライン】住宅購入基礎セミナー 個別相談

【オンライン】住宅購入基礎セミナー 個別相談

  • リノベ相談会
  • 物件相談
  • ローンセミナー
【無料】FP個別相談会

【無料】FP個別相談会

  • ローンセミナー
  • その他

セントラル三田(東京都港区)のリノベーション済み中古マンションはいかがでしたか?気になる点は資料請求や問い合わせでチェック!画像だけではわからないセントラル三田の魅力がきっと見つかります。

セントラル三田(東京都港区)のリノベーション済み中古マンションの物件情報はいかがでしたか?最新の販売状況の確認やリノベーションのポイントなど、気になる点は資料請求や問い合わせで確かめることがおすすめです。画像だけではわからないセントラル三田の魅力がきっと見つかります。