リノベ不動産 renove fudosan 日本住を、愉快に。 ローン相談、物件探し、設計・施工、入居後のインテリア提案までリノベ不動産が一貫してサポート。 WEAR_ロゴ 日本住を、愉快に。
  • リノベーション向き物件
  • 中古戸建て

中古戸建 京急蒲田

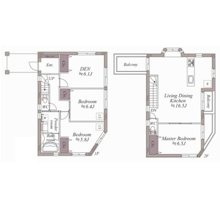
間取り 間取り図

間取り 間取り図

周辺 大田区立中富小学校まで約740m

周辺 大田区立中富小学校まで約740m

周辺 大田区立大森東中学校まで約550m

周辺 大田区立大森東中学校まで約550m

周辺 京浜急行電鉄京急蒲田駅まで約1600m

周辺 京浜急行電鉄京急蒲田駅まで約1600m

間取り 間取り図
周辺 大田区立中富小学校まで約740m
周辺 大田区立大森東中学校まで約550m
周辺 京浜急行電鉄京急蒲田駅まで約1600m
販売価格
6,990 万円
間取り
3 SLDK
延床面積
エリア
東京都大田区
沿線・最寄駅
京急本線「京急蒲田」駅 徒歩20分
京急本線「梅屋敷」駅 徒歩11分
弊社は横浜駅西口から徒歩3分の立地!青い看板が目印 開放的な接客スペースとDVDや遊び道具が揃ったキッズコーナーや おむつ替えができる授乳室も完備お子様連れでも安心です
〜住宅は実物を見てから購入したいもの〜 それができるのが中古住宅です。 現地に出向くことで建物の外観・採光・風通し・眺望などを確認し、 実際にその空間を肌で感じることができます。 また、周辺環境や建物の管理状況、隣人の人となりなども確認できるので、 そこに暮らす自分の姿を具体的にイメージでき、 納得してから購入を決断できるという安心感があります♪ 当店は横浜駅西口から徒歩3分の立地!青い看板が目印 開放的な接客スペースとDVDや遊び道具が揃ったキッズコーナーや おむつ替えができる授乳室も完備 お子様連れでも安心です 提携駐車場もございます ご来店の際は、事前にご予約を頂けるとスムーズです♪

〇ここが大事!! 周辺の教育施設やスーパー、ドラックストア等の情報、災害情報「物件レポート」をお渡します! 〇他の物件と併せてご案内もOK! 〇ご自宅や指定場所から無料送迎もOK! 〇当日見学もOK! 〇店舗前面はガラス張りで明るく開放的な接客スペース♪ 外からは見えにくい場所にも個別相談ができる商談スペースがありご相談等は無料で行っております どんなことでも相談できる朝日土地建物へどうぞ!!!!

物件情報

物件名
中古戸建 京急蒲田
築年月
2006年08月(築19年)
間取り
3 SLDK
接道状況
北側 私道 接面4m
階数
2階建
販売価格
6,990万円
建ぺい率
60%
容積率
200%
地積
103.22㎡ (公簿)
地目
宅地
現況
引渡
2025年12月
取引態様
媒介

共通概要

種別
中古売戸建
所在地
東京都大田区大森東4丁目36-4
交通
京急本線「京急蒲田」駅 徒歩20分
京急本線「梅屋敷」駅 徒歩11分
構造
木造
土地権利
所有権
用途地域
準工業
地目
宅地
都市計画
市街化区域
駐車場
有 /

物件の設備・条件

設備・機能
上水道/下水道/都市ガス/複層ガラス/フローリング
バルコニー・庭
バルコニー
キッチン
浄水器/食器洗浄乾燥機/システムキッチン
セキュリティー
モニタ付インターホン
収納
全居室収納

会社情報

商号
朝日土地建物株式会社 横浜支店
会社住所
神奈川県横浜市西区北幸一丁目11-11-1F
会社電話番号
0120-72-4311
免許番号
国土交通大臣(9)第3744号

情報公開日・更新予定日

情報公開日
2025/12/20
次回更新予定日
情報提供より8日以内に更新
取引条件有効期限
-

情報提供元:ミノリノ
画像提供元:ミノリノ
※各種情報と現状に差異がある場合は、現状優先となります。詳細は取扱店舗までご確認ください。

【オンライン】リノベってなに?まるわかりセミナー 

【オンライン】リノベってなに?まるわかりセミナー 

  • リノベ相談会
  • 物件相談
  • ローンセミナー
【オンライン】住宅購入基礎セミナー 個別相談

【オンライン】住宅購入基礎セミナー 個別相談

  • リノベ相談会
  • 物件相談
  • ローンセミナー
【無料】FP個別相談会

【無料】FP個別相談会

  • ローンセミナー
  • その他

中古戸建京急蒲田(東京都大田区)のリノベーション向き中古戸建てはいかがでしたか?気になる点は資料請求や問い合わせでチェック!画像だけではわからない中古戸建京急蒲田の魅力がきっと見つかります。

中古戸建京急蒲田(東京都大田区)のリノベーション向き中古戸建ての物件情報はいかがでしたか?最新の販売状況の確認やリノベーションのポイントなど、気になる点は資料請求や問い合わせで確かめることがおすすめです。画像だけではわからない中古戸建京急蒲田の魅力がきっと見つかります。