リノベ不動産 renove fudosan 日本住を、愉快に。 ローン相談、物件探し、設計・施工、入居後のインテリア提案までリノベ不動産が一貫してサポート。 WEAR_ロゴ 日本住を、愉快に。
  • リノベーション向き物件
  • 中古戸建て

八王子市西寺方町

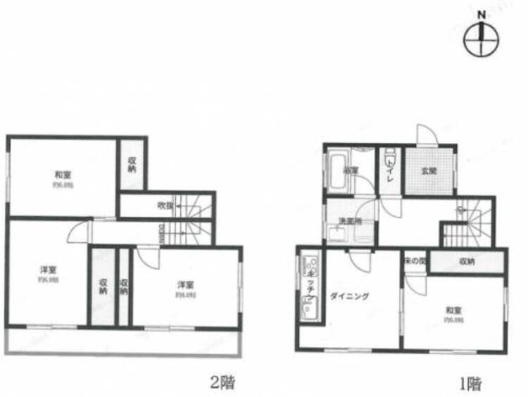
間取り 繁華街から離れた静かな住環境でのんびりスローライフ

間取り 繁華街から離れた静かな住環境でのんびりスローライフ

周辺 TAIRAYA西寺方店迄550m

周辺 TAIRAYA西寺方店迄550m

周辺 セブンイレブン 八王子西寺方店迄140m

周辺 セブンイレブン 八王子西寺方店迄140m

間取り 繁華街から離れた静かな住環境でのんびりスローライフ
周辺 TAIRAYA西寺方店迄550m
周辺 セブンイレブン 八王子西寺方店迄140m
販売価格
1,680 万円
間取り
4 DK
延床面積
エリア
東京都八王子市
沿線・最寄駅
JR中央本線「高尾」駅 バス31分 徒歩1分
JR中央本線「西八王子」駅 バス25分 徒歩1分
コンビニまで徒歩約2分、スーパーまで徒歩約7分と日々のお買い物や急なお買い物に対応可能な物件となっております。また、ドラッグストアも周囲に数件あるため急な体調不良などが起きても安心の周辺環境となっております。 周囲には公園や緑がありお子様がいるご家庭やお散歩好きな方、ペットを飼育されているご家庭など様々な方におススメの物件となっております。また、バス停が当物件の近くにあり、駅までバスで行くことができ、自然と利便性を兼ね備えた物件となっております。
★各室収納を備えゆとりを持った生活を実現できます。 ★全居室6帖以上で、家族それぞれの時間を大切にしてくれる構成となっております。 ★1階に洗面所・浴室・トイレがまとまり、生活動線がスムーズに設計されております。

■物件のご紹介 事前にご希望条件等を教えてくだされば、掲載物件以外の周辺物件情報も多数ご紹介が可能です。 お問い合わせメールに箇条書きでかまいませんので(お探しのエリア・ご予算・ご希望間取りなど)をお知らせください。 ———【住宅ローン事前無料相談会開催中!】———  ・日程:ご相談ください。 ・開催時間:10:00〜 ■ご予約方法 ・受付: ・メールの場合:【資料請求】ボタンをクリックでお問い合わせください。 事前に鍵の手配や売主様とスケジュールの調整が必要な物件がございます。 お早目にご連絡をいただけるとご案内がスムーズです。

物件情報

物件名
八王子市西寺方町
築年月
1980年09月(築45年)
間取り
4 DK
接道状況
北側 公道 接面4m
階数
2階建
販売価格
1,680万円
建ぺい率
40%
容積率
80%
地積
126.95㎡ (公簿)
地目
宅地
現況
引渡
2025年12月
取引態様
媒介

共通概要

種別
中古売戸建
所在地
東京都八王子市西寺方町435-88
交通
JR中央本線「高尾」駅 バス31分 徒歩1分
JR中央本線「西八王子」駅 バス25分 徒歩1分
構造
木造
土地権利
所有権
用途地域
1種低層
地目
宅地
都市計画
市街化区域
駐車場
有 /

物件の設備・条件

設備・機能
上水道/下水道/給湯/フローリング
バルコニー・庭
バルコニー/専用庭
冷暖房
エアコン
セキュリティー
モニタ付インターホン
キッチン
システムキッチン/ガスコンロ付
家具・家電・照明
照明器具
収納
全居室収納

会社情報

商号
朝日土地建物株式会社 八王子支店
会社住所
東京都八王子市10-3 安嶋中央ビル4F
会社電話番号
0426424311
免許番号
国土交通大臣(9)第3744号

情報公開日・更新予定日

情報公開日
2025/11/28
次回更新予定日
情報提供より8日以内に更新
取引条件有効期限
-

情報提供元:ミノリノ
画像提供元:ミノリノ
※各種情報と現状に差異がある場合は、現状優先となります。詳細は取扱店舗までご確認ください。

【オンライン】リノベってなに?まるわかりセミナー 

【オンライン】リノベってなに?まるわかりセミナー 

  • リノベ相談会
  • 物件相談
  • ローンセミナー
【オンライン】住宅購入基礎セミナー 個別相談

【オンライン】住宅購入基礎セミナー 個別相談

  • リノベ相談会
  • 物件相談
  • ローンセミナー
【無料】FP個別相談会

【無料】FP個別相談会

  • ローンセミナー
  • その他

八王子市西寺方町(東京都八王子市)のリノベーション向き中古戸建てはいかがでしたか?気になる点は資料請求や問い合わせでチェック!画像だけではわからない八王子市西寺方町の魅力がきっと見つかります。

八王子市西寺方町(東京都八王子市)のリノベーション向き中古戸建ての物件情報はいかがでしたか?最新の販売状況の確認やリノベーションのポイントなど、気になる点は資料請求や問い合わせで確かめることがおすすめです。画像だけではわからない八王子市西寺方町の魅力がきっと見つかります。