リノベ不動産 renove fudosan 日本住を、愉快に。 ローン相談、物件探し、設計・施工、入居後のインテリア提案までリノベ不動産が一貫してサポート。 WEAR_ロゴ 日本住を、愉快に。
  • リノベーション済み物件
  • 中古戸建て

昭島市中神町 中古一戸建て

内装

内装

内装

内装

内装

内装

居間

居間

居間

居間

居間

居間

居間

居間

外観 現地全景

外観 現地全景

外観 現地全景

外観 現地全景

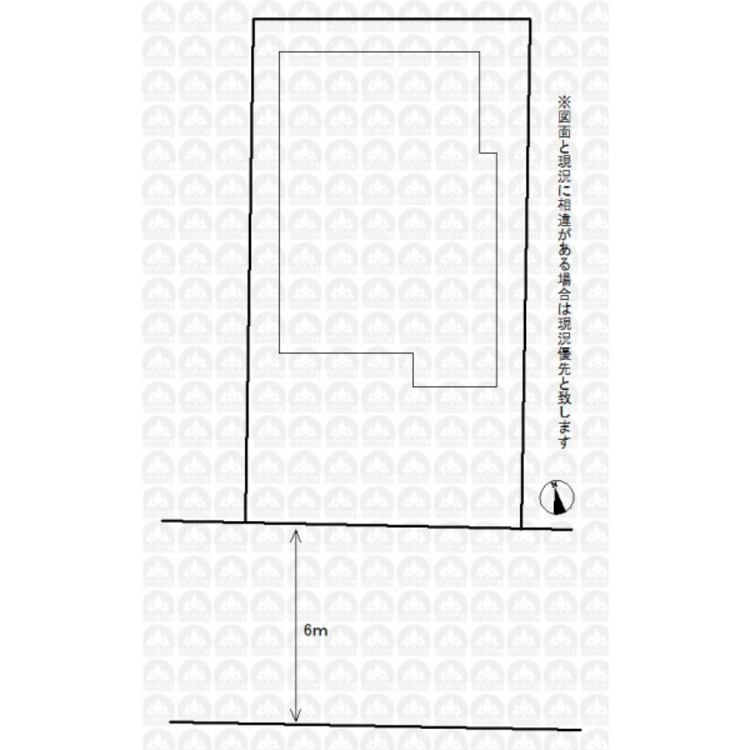
間取り

間取り

キッチン

キッチン

風呂

風呂

トイレ

トイレ

洗面

洗面

玄関

玄関

玄関

玄関

バルコニー

バルコニー

地図

地図

周辺 武蔵野小学校(約700m)

周辺 武蔵野小学校(約700m)

周辺 瑞雲中学校(約1600m)

周辺 瑞雲中学校(約1600m)

周辺 TAIRAYA中神店(約220m)

周辺 TAIRAYA中神店(約220m)

内装
内装
内装
居間
居間
居間
居間
外観 現地全景
外観 現地全景
間取り
キッチン
風呂
トイレ
洗面
玄関
玄関
バルコニー
地図
周辺 武蔵野小学校(約700m)
周辺 瑞雲中学校(約1600m)
周辺 TAIRAYA中神店(約220m)
販売価格
3,680 万円
間取り
3 LDK
延床面積
(壁芯)
エリア
東京都昭島市
沿線・最寄駅
JR青梅線「中神」駅 徒歩20分
西武拝島線「武蔵砂川」駅 徒歩18分
一部新規リフォーム済み/南向きバルコニー/各居室収納あり/二路線利用可能

物件情報

物件名
昭島市中神町 中古一戸建て
築年月
1996年03月(築29年)
間取り
3 LDK
接道状況
南側 公道 接面6m
階数
2階建
販売価格
3,680万円
建ぺい率
60%
容積率
200%
地積
100㎡ (公簿)
地目
宅地
現況
引渡
2025年12月
取引態様
媒介

共通概要

種別
中古売戸建
所在地
東京都昭島市中神町
交通
JR青梅線「中神」駅 徒歩20分
西武拝島線「武蔵砂川」駅 徒歩18分
構造
木造
土地権利
所有権
用途地域
1種中高
地目
宅地
都市計画
市街化区域
駐車場
有 /

物件の設備・条件

設備・機能
上水道/下水道/プロパンガス/フローリング
キッチン
浄水器/システムキッチン
収納
クローゼット

会社情報

商号
株式会社西武開発 立川店
会社住所
東京都立川市6-34
会社電話番号
042-548-3711
免許番号
国土交通大臣(5)第6323号

情報公開日・更新予定日

情報公開日
2025/10/10
次回更新予定日
情報提供より8日以内に更新
取引条件有効期限
-

情報提供元:ミノリノ
画像提供元:ミノリノ
※各種情報と現状に差異がある場合は、現状優先となります。詳細は取扱店舗までご確認ください。

【オンライン】リノベってなに?まるわかりセミナー 

【オンライン】リノベってなに?まるわかりセミナー 

  • リノベ相談会
  • 物件相談
  • ローンセミナー
【オンライン】住宅購入基礎セミナー 個別相談

【オンライン】住宅購入基礎セミナー 個別相談

  • リノベ相談会
  • 物件相談
  • ローンセミナー
【無料】FP個別相談会

【無料】FP個別相談会

  • ローンセミナー
  • その他

昭島市中神町中古一戸建て(東京都昭島市)のリノベーション済み中古戸建てはいかがでしたか?気になる点は資料請求や問い合わせでチェック!画像だけではわからない昭島市中神町中古一戸建ての魅力がきっと見つかります。

昭島市中神町中古一戸建て(東京都昭島市)のリノベーション済み中古戸建ての物件情報はいかがでしたか?最新の販売状況の確認やリノベーションのポイントなど、気になる点は資料請求や問い合わせで確かめることがおすすめです。画像だけではわからない昭島市中神町中古一戸建ての魅力がきっと見つかります。