リノベ不動産 renove fudosan 日本住を、愉快に。 ローン相談、物件探し、設計・施工、入居後のインテリア提案までリノベ不動産が一貫してサポート。 WEAR_ロゴ 日本住を、愉快に。
  • リノベーション済み物件
  • 中古戸建て

大津市石居

販売価格
2,130 万円
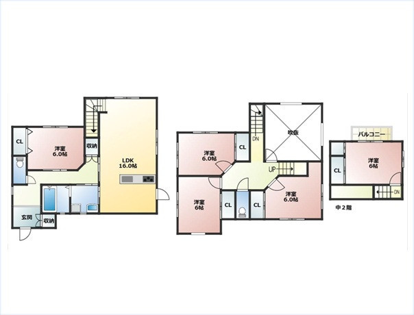
間取り
5LDK
延床面積
116.76㎡(35.31坪)(壁芯)
エリア
滋賀県大津市
沿線・最寄駅
JR東海道本線「石山」駅 バス12分 徒歩2分
水まわり交換♪中2階があるお家☆

支払額シミュレーション

大津市石居

  • 間取り: 5LDK
  • 面積: 35.31坪(壁芯)

中古戸建て
販売価格

2,130万円

参考リノベ費用

500万円

提携ローン

0.65%

毎月のお支払い 70,029円

物件情報

物件名
大津市石居
築年月
2008年10月(築17年)
間取り
5LDK
階数
ガス
都市ガス
水道
公営水道
汚水
公共下水
販売価格
2,130万円
建ぺい率
60%
容積率
200%
地積
297.52㎡ (89.99坪) (公簿)
地目
宅地
現況
取引態様
小学校区
田上小学校 (約1040m)
中学校区
田上中学校 (約3100m)

共通概要

種別
中古売戸建
所在地
滋賀県大津市石居1丁目
交通
JR東海道本線「石山」駅 バス12分 徒歩2分
構造
木造
土地権利
所有権
建物面積
1階60.45㎡  2階56.31㎡ 
合計116.76㎡ 35.31坪 (壁芯)
用途地域
地目
宅地
都市計画
調整区域

物件の設備・条件

設備・機能
上水道/下水道/都市ガス/全居室フローリング/吹き抜け/全室フローリング
バス・トイレ・洗面所
追焚機能/洗髪洗面化粧台/温水洗浄便座/トイレ2ヶ所
キッチン
カウンタキッチン/システムキッチン
収納
クローゼット/全居室収納
工法・構造・仕様
駐車場2台分/吹抜
立地・環境
閑静な住宅街

広告主の会社情報

店舗名
リノベ不動産|南草津店
会社名
西和ホーム株式会社
会社住所
滋賀県草津市東矢倉4丁目1−2
会社電話番号
0120-875-573
免許番号
宅建業:滋賀県知事(5)第2961号 建設業:滋賀県知事 許可(般-6)第22694号
所属団体
公益社団法人 全国宅地建物取引業保証協会

情報公開日・更新予定日

情報公開日
2026/02/13
次回更新予定日
情報提供より8日以内に更新
取引条件有効期限
-

大津市石居(滋賀県大津市)のリノベーション済み中古戸建てはいかがでしたか?気になる点は資料請求や問い合わせでチェック!画像だけではわからない大津市石居の魅力がきっと見つかります。

大津市石居(滋賀県大津市)のリノベーション済み中古戸建ての物件情報はいかがでしたか?最新の販売状況の確認やリノベーションのポイントなど、気になる点は資料請求や問い合わせで確かめることがおすすめです。画像だけではわからない大津市石居の魅力がきっと見つかります。