リノベ不動産 renove fudosan 日本住を、愉快に。 ローン相談、物件探し、設計・施工、入居後のインテリア提案までリノベ不動産が一貫してサポート。 WEAR_ロゴ 日本住を、愉快に。
  • リノベーション向き物件
  • 中古マンション

サンライズ伊奈

総戸数200戸のビッグコミュニティ

総戸数200戸のビッグコミュニティ

LDK13帖:可動間仕切りで多様な使い方ができます

LDK13帖:可動間仕切りで多様な使い方ができます

リビング横の可動間仕切り5.5帖の洋室 WIC付きで収納も◎

リビング横の可動間仕切り5.5帖の洋室 WIC付きで収納も◎

キッチン:新規入れ替え済み!食洗器付きなので家事がはかどります

キッチン:新規入れ替え済み!食洗器付きなので家事がはかどります

ワークスペースに最適!お子様の勉強場所にも使えそうです

ワークスペースに最適!お子様の勉強場所にも使えそうです

洋室6.2帖のWIC お洋服はもちろん、お布団や季節ものの収納にも

洋室6.2帖のWIC お洋服はもちろん、お布団や季節ものの収納にも

洗面化粧台新規取り換え済み 洗濯機置き場上の戸棚が便利♪ タオル置き場や洗剤の置き場としても◎

洗面化粧台新規取り換え済み 洗濯機置き場上の戸棚が便利♪ タオル置き場や洗剤の置き場としても◎

UB新規取り換え済み! 浴室乾燥暖房機能付き ブラウン基調の落ち着いたバスルーム♪

UB新規取り換え済み! 浴室乾燥暖房機能付き ブラウン基調の落ち着いたバスルーム♪

温水洗浄便座つき 上部戸棚には消耗品などをしまっておけます

温水洗浄便座つき 上部戸棚には消耗品などをしまっておけます

7階からの眺望♪ 南東向きのお部屋で日当たり良好

7階からの眺望♪ 南東向きのお部屋で日当たり良好

エアコン2基 取付済みです♪

エアコン2基 取付済みです♪

総戸数200戸のビッグコミュニティ
LDK13帖:可動間仕切りで多様な使い方ができます
リビング横の可動間仕切り5.5帖の洋室 WIC付きで収納も◎
LDK13帖:可動間仕切りで多様な使い方ができます
ワークスペースに最適!お子様の勉強場所にも使えそうです
洋室6.2帖のWIC お洋服はもちろん、お布団や季節ものの収納にも
洗面化粧台新規取り換え済み 洗濯機置き場上の戸棚が便利♪ タオル置き場や洗剤の置き場としても◎
UB新規取り換え済み! 浴室乾燥暖房機能付き ブラウン基調の落ち着いたバスルーム♪
温水洗浄便座つき 上部戸棚には消耗品などをしまっておけます
7階からの眺望♪ 南東向きのお部屋で日当たり良好
エアコン2基 取付済みです♪
販売価格
1,190 万円
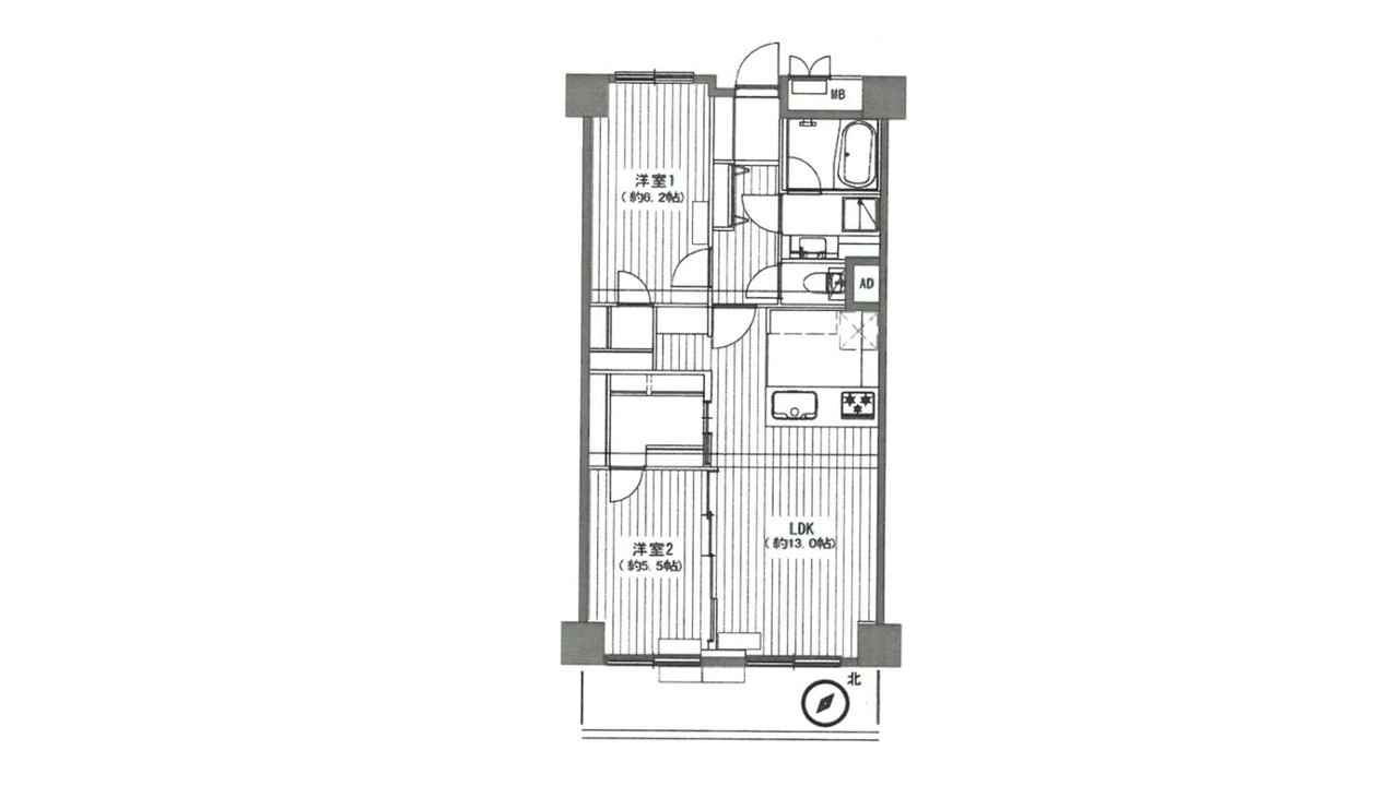
間取り
2LDK+WIC
延床面積
61.2㎡(18.51坪)(壁芯)
エリア
埼玉県北足立郡伊奈町
沿線・最寄駅
湘南新宿ライン「蓮田」駅 徒歩16分
JR東北本線「蓮田」駅 徒歩16分
蓮田駅 徒歩約16分! 7階南東向きで陽当たり良好
フルリノベ済みのきれいな居宅

支払額シミュレーション

サンライズ伊奈

  • 間取り: 2LDK+WIC
  • 面積: 18.51坪(壁芯)

中古マンション
販売価格

1,190万円

参考リノベ費用

500万円

提携ローン

0.625%

毎月のお支払い 44,810円

物件情報

物件名
サンライズ伊奈
間取り図
間取り図
間取り図
築年月
1978年11月(築47年)
間取り
2LDK+WIC
所在階/階数
7階  /  8階建
ガス
都市ガス
水道
公営水道
汚水
公共下水
販売価格
1,190万円
引渡
2025年12月
取引態様
媒介
管理費
月額6,300円
管理形態
全部委託(日勤管理)
修繕積立金
月額18,700円
小学校区
南小学校 (約780m)
中学校区
南中学校 (約1080m)

共通概要

種別
中古売マンション
所在地
埼玉県北足立郡伊奈町大字小室
交通
湘南新宿ライン「蓮田」駅 徒歩16分
JR東北本線「蓮田」駅 徒歩16分
構造
SRC
土地権利
所有権
専有面積

合計61.2㎡ 18.51坪 (壁芯)
用途地域
駐車場
有 / 月額5,000円
販売戸数
1戸

物件の設備・条件

設備・機能
室内洗濯機置場/給湯/エレベータ/都市ガス/全居室フローリング/可動間仕切り/照明器具付き/24時間換気システム
バス・トイレ・洗面所
追焚機能/浴室乾燥機/洗髪洗面化粧台/温水洗浄便座/浴室暖房/浴室暖房
収納
収納スペース/クローゼット/Wクロゼット/全居室収納
冷暖房
エアコン/エアコン2台以上
キッチン
カウンタキッチン/食器洗浄乾燥機/システムキッチン/3口以上コンロ/グリル
共用設備
宅配BOX
セキュリティー
モニタ付オートロック
駐車場
バイク置き場/来客用駐車場
家具・家電・照明
ダウンライト
立地・環境
日当り良好
特徴
管理人日勤

広告主の会社情報

店舗名
リノベ不動産|東大宮7丁目店
会社名
合同会社GT
会社住所
埼玉県さいたま市見沼区東大宮7丁目49‐10
会社電話番号
048-793-5770
免許番号
宅地建物取引業者 埼玉県知事(1)第24771号
所属団体

情報公開日・更新予定日

情報公開日
2025/08/08
次回更新予定日
情報提供より8日以内に更新
取引条件有効期限
-

サンライズ伊奈(埼玉県北足立郡伊奈町)のリノベーション向き中古マンションはいかがでしたか?気になる点は資料請求や問い合わせでチェック!画像だけではわからないサンライズ伊奈の魅力がきっと見つかります。

サンライズ伊奈(埼玉県北足立郡伊奈町)のリノベーション向き中古マンションの物件情報はいかがでしたか?最新の販売状況の確認やリノベーションのポイントなど、気になる点は資料請求や問い合わせで確かめることがおすすめです。画像だけではわからないサンライズ伊奈の魅力がきっと見つかります。