リノベ不動産 renove fudosan 日本住を、愉快に。 ローン相談、物件探し、設計・施工、入居後のインテリア提案までリノベ不動産が一貫してサポート。 WEAR_ロゴ 日本住を、愉快に。
  • リノベーション済み物件
  • 中古戸建て

東佐賀町戸建売物件

販売価格
2,480 万円
間取り
洋室4
延床面積
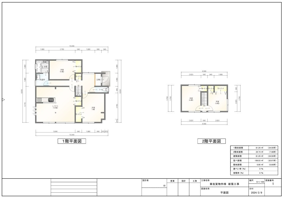
102.93㎡(31.13坪)(壁芯)
エリア
佐賀県佐賀市
沿線・最寄駅
JR長崎本線「佐賀」駅 徒歩28分
フルリノベーション済物件です!水廻り、内外装もリニューアルしていますので気持ちよく過ごせます。小学校まで徒歩約6分の立地ですので、お子様の通学も安心です!

物件情報

物件名
東佐賀町戸建売物件
間取り図
間取り図
間取り図
築年月
1965年10月(築60年)
間取り
洋室4
接道状況
東側 私道
階数
2階建
ガス
水道
公営水道
汚水
公共下水
販売価格
2,480万円
地積
155.36㎡ (46.99坪) (公簿)
現況
引渡
2026年03月
取引態様
一般
小学校区
循誘小学校 (約450m)
中学校区
城東中学校 (約700m)

共通概要

種別
中古売戸建
所在地
佐賀県佐賀市東佐賀町
交通
JR長崎本線「佐賀」駅 徒歩28分
構造
木造 セメント瓦葺
土地権利
建物面積

合計102.93㎡ 31.13坪 (壁芯)
用途地域

物件の設備・条件

設備・機能
電気/上水道/下水道
バス・トイレ・洗面所
追焚機能/洗髪洗面化粧台/温水洗浄便座/節水型トイレ
セキュリティー
モニタ付インターホン
キッチン
システムキッチン/3口以上コンロ
収納
クローゼット

広告主の会社情報

店舗名
リノベ不動産|佐賀南店
会社名
田島株式会社
会社住所
佐賀県佐賀市水ヶ江6丁目4番11号
会社電話番号
0952-23-3281
免許番号
宅地建物取引業免許 佐賀県知事免許 (03)第002449号 建築業許可 佐賀県知事許可 第000850号
所属団体

情報公開日・更新予定日

情報公開日
2025/12/13
次回更新予定日
情報提供より8日以内に更新
取引条件有効期限
-

東佐賀町戸建売物件(佐賀県佐賀市)のリノベーション済み中古戸建てはいかがでしたか?気になる点は資料請求や問い合わせでチェック!画像だけではわからない東佐賀町戸建売物件の魅力がきっと見つかります。

東佐賀町戸建売物件(佐賀県佐賀市)のリノベーション済み中古戸建ての物件情報はいかがでしたか?最新の販売状況の確認やリノベーションのポイントなど、気になる点は資料請求や問い合わせで確かめることがおすすめです。画像だけではわからない東佐賀町戸建売物件の魅力がきっと見つかります。