リノベ不動産 renove fudosan 日本住を、愉快に。 ローン相談、物件探し、設計・施工、入居後のインテリア提案までリノベ不動産が一貫してサポート。 WEAR_ロゴ 日本住を、愉快に。
  • リノベーション向き物件
  • 中古戸建て

【南区八分字町中古戸建】飽田東小・飽田中学校区

販売価格
1,790 万円
間取り
3 LDK
延床面積
109.71㎡(33.18坪)(壁芯)
エリア
熊本県熊本市南区
沿線・最寄駅
JR鹿児島本線「川尻」駅 徒歩30分
【南区八分字町中古戸建】飽田東小・飽田中学校区

物件情報

物件名
【南区八分字町中古戸建】飽田東小・飽田中学校区
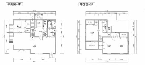
間取り図
間取り図
間取り図
築年月
2006年06月(築19年)
間取り
3 LDK
接道状況
東側 公道 接道幅4m 接面4m
階数
2階建
販売価格
1,790万円(税込)
建ぺい率
60%
容積率
150%
地積
265.06㎡ (80.18坪) (公簿)
地目
宅地
現況
居住中
引渡
2026年3月 下旬
取引態様
専任
小学校区
飽田東小学校 (約600m)
中学校区
飽田中学校 (約900m)

共通概要

種別
中古売戸建
所在地
熊本県熊本市南区八分字町2672
交通
JR鹿児島本線「川尻」駅 徒歩30分
構造
木造 ルーフィング葺
土地権利
所有権
建物面積

合計109.71㎡ 33.18坪 (壁芯)
用途地域
1種中高
地目
宅地
都市計画
市街化区域
駐車場
有 / 無料
販売戸数
1戸

物件の設備・条件

設備・機能
電気/上水道/下水道/複層ガラス/バリアフリー/オール電化/24時間換気システム/複層ガラス・複層サッシ/地盤調査済
キッチン
IHクッキングヒータ/システムキッチン
セキュリティー
モニタ付インターホン/ディンプルキー/火災警報器(報知機)
バス・トイレ・洗面所
洗髪洗面化粧台/温水洗浄便座/トイレ2ヶ所/オートバス/節水型トイレ
収納
クローゼット/全居室収納/シューズボックス
家具・家電・照明
照明器具/ダウンライト
特徴
バス1坪以上/オール電化
立地・環境
日当り良好/閑静な住宅街

広告主の会社情報

店舗名
リノベ不動産|熊本北店
会社名
株式会社総合内装業TANAKA
会社住所
熊本県熊本県熊本市北区飛田2丁目10-95
会社電話番号
096-200-8415
免許番号
建設業許可取得 【熊本県知事(般-2)第19175号】 宅地建物取引業者免許取得 【熊本県知事(1)第5639号】
所属団体
(公社)全日本不動産協会会員
(一社)九州不動産公正取引協議会加盟

情報公開日・更新予定日

情報公開日
2025/09/13
次回更新予定日
情報提供より8日以内に更新
取引条件有効期限
-

【南区八分字町中古戸建】飽田東小・飽田中学校区(熊本県熊本市南区)のリノベーション向き中古戸建てはいかがでしたか?気になる点は資料請求や問い合わせでチェック!画像だけではわからない【南区八分字町中古戸建】飽田東小・飽田中学校区の魅力がきっと見つかります。

【南区八分字町中古戸建】飽田東小・飽田中学校区(熊本県熊本市南区)のリノベーション向き中古戸建ての物件情報はいかがでしたか?最新の販売状況の確認やリノベーションのポイントなど、気になる点は資料請求や問い合わせで確かめることがおすすめです。画像だけではわからない【南区八分字町中古戸建】飽田東小・飽田中学校区の魅力がきっと見つかります。