リノベ不動産 renove fudosan 日本住を、愉快に。 ローン相談、物件探し、設計・施工、入居後のインテリア提案までリノベ不動産が一貫してサポート。 WEAR_ロゴ 日本住を、愉快に。
  • リノベーション向き物件
  • 中古戸建て

「東林間」駅 歩6分 相模原市南区東林間6丁目

内装

内装

内装

内装

居間

居間

居間

居間

居間

居間

居間

居間

外観

外観

外観

外観

外観

外観

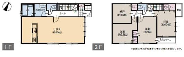
間取り

間取り

キッチン

キッチン

キッチン

キッチン

キッチン

キッチン

キッチン

キッチン

キッチン

キッチン

風呂

風呂

トイレ

トイレ

洗面

洗面

洗面

洗面

その他

その他

その他

その他

その他

その他

周辺 東林間駅まで約471m

周辺 東林間駅まで約471m

周辺 東急田園都市線中央林間駅まで約1456m

周辺 東急田園都市線中央林間駅まで約1456m

周辺 小田急江ノ島線中央林間駅まで約1456m

周辺 小田急江ノ島線中央林間駅まで約1456m

周辺 くぬぎ台小学校まで約868m

周辺 くぬぎ台小学校まで約868m

周辺 上鶴間中学校まで約959m

周辺 上鶴間中学校まで約959m

周辺 林間のぞみ幼稚園まで約230m

周辺 林間のぞみ幼稚園まで約230m

周辺 セブンイレブン相模原相南1丁目店まで約332m

周辺 セブンイレブン相模原相南1丁目店まで約332m

周辺 三和東林間西口店まで約414m

周辺 三和東林間西口店まで約414m

内装
内装
居間
居間
居間
居間
外観
外観
外観
間取り
キッチン
キッチン
キッチン
キッチン
キッチン
風呂
トイレ
洗面
洗面
その他
その他
その他
周辺 東林間駅まで約471m
周辺 東急田園都市線中央林間駅まで約1456m
周辺 小田急江ノ島線中央林間駅まで約1456m
周辺 くぬぎ台小学校まで約868m
周辺 上鶴間中学校まで約959m
周辺 林間のぞみ幼稚園まで約230m
周辺 セブンイレブン相模原相南1丁目店まで約332m
周辺 三和東林間西口店まで約414m
販売価格
5,480 万円
間取り
3 SLDK
延床面積
エリア
神奈川県相模原市南区
沿線・最寄駅
小田急江ノ島線「東林間」駅 徒歩6分
東急田園都市線「中央林間」駅 徒歩19分
「東林間」駅まで徒歩6分の好立地♪ 内外装リフォーム済みでお手入れ不要でお住まいいただけます♪
◇低層住居専用地域につき閑静な住宅地♪ ◇食洗機・浄水器・浴室乾燥機等あると嬉しい設備が充実♪ ◇広々LDK20帖でご家族みんなでゆったりお過ごしいただけます♪ ◇開発分譲地内につき整った街並みが魅力です♪ ◇道路と段差のない平坦地♪ ◇即引き渡し可の物件ですぐにお住まいいただけます♪ ◇複数路線利用可でお出かけに便利♪

システムキッチン、カウンターキッチン、食器洗乾燥機、浄水器、シャワー、シャワー付き洗面化粧台、温水洗浄便座、トイレ2ヶ所、追焚き給湯、LDK20帖以上、フローリング、全居室フローリング、火災警報器(報知機)、浴室に窓、浴室乾燥機、全居室収納スペース、納戸、トイレ収納、バリアフリー、ディンプルキー、ペアガラス、シャッター雨戸、ピッキング対策付ドア、TVインターホン、ハウスクリーニング、閑静な住宅地

物件情報

物件名
「東林間」駅 歩6分 相模原市南区東林間6丁目
築年月
2008年08月(築17年)
間取り
3 SLDK
接道状況
北東側 私道 接面4.7m
階数
2階建
販売価格
5,480万円
建ぺい率
50%
容積率
100%
地積
100.31㎡ (公簿)
地目
宅地
現況
引渡
2026年04月
取引態様
媒介

共通概要

種別
中古売戸建
所在地
神奈川県相模原市南区東林間6丁目9-29-6
交通
小田急江ノ島線「東林間」駅 徒歩6分
東急田園都市線「中央林間」駅 徒歩19分
構造
木造
土地権利
所有権
用途地域
1種低層
地目
宅地
都市計画
市街化区域
駐車場
有 /

物件の設備・条件

設備・機能
上水道/下水道/都市ガス/フローリング
キッチン
浄水器/カウンタキッチン/食器洗浄乾燥機/システムキッチン
セキュリティー
モニタ付インターホン
収納
全居室収納
工法・構造・仕様
バリアフリー

会社情報

商号
朝日土地建物株式会社 町田本社
会社住所
東京都町田市3-20 TK町田ビル1F
会社電話番号
0427234311
免許番号
国土交通大臣(9)第3744号

情報公開日・更新予定日

情報公開日
2026/03/01
次回更新予定日
情報提供より8日以内に更新
取引条件有効期限
-

情報提供元:ミノリノ
画像提供元:ミノリノ
※各種情報と現状に差異がある場合は、現状優先となります。詳細は取扱店舗までご確認ください。

「東林間」駅歩6分相模原市南区東林間6丁目(神奈川県相模原市南区)のリノベーション向き中古戸建てはいかがでしたか?気になる点は資料請求や問い合わせでチェック!画像だけではわからない「東林間」駅歩6分相模原市南区東林間6丁目の魅力がきっと見つかります。

「東林間」駅歩6分相模原市南区東林間6丁目(神奈川県相模原市南区)のリノベーション向き中古戸建ての物件情報はいかがでしたか?最新の販売状況の確認やリノベーションのポイントなど、気になる点は資料請求や問い合わせで確かめることがおすすめです。画像だけではわからない「東林間」駅歩6分相模原市南区東林間6丁目の魅力がきっと見つかります。