リノベ不動産 renove fudosan 日本住を、愉快に。 ローン相談、物件探し、設計・施工、入居後のインテリア提案までリノベ不動産が一貫してサポート。 WEAR_ロゴ 日本住を、愉快に。
  • リノベーション向き物件
  • 中古マンション

コスモ新横浜

内装 健やかな時間を過ごせるプライベートルームはとても大切です!!インテリアにも合わせやすいカラーリング!それぞれの居室に思い思いのコーディネートをしてより空間を演出することでよりいっそう大事にな空間に!

内装 健やかな時間を過ごせるプライベートルームはとても大切です!!インテリアにも合わせやすいカラーリング!それぞれの居室に思い思いのコーディネートをしてより空間を演出することでよりいっそう大事にな空間に!

内装 居室はひとり時間を過ごせる安らげるお部屋として活用できます!収納スペースあり!荷物が多くても十分!!ベッドや勉強机、テレビなどを置きたい場合におすすめ!!過ごす時間が長くてもゆったり過ごせそうですね!

内装 居室はひとり時間を過ごせる安らげるお部屋として活用できます!収納スペースあり!荷物が多くても十分!!ベッドや勉強机、テレビなどを置きたい場合におすすめ!!過ごす時間が長くてもゆったり過ごせそうですね!

内装 自分の時間を充実させながら心豊かにできるプライベート空間!!穏やかな寛ぎを届ける仕様のゆとりある居室。個室のお部屋が欲しいという要望に応える設計で、過ごす時間が長くてもゆったり落ち着いて過ごせそう!!

内装 自分の時間を充実させながら心豊かにできるプライベート空間!!穏やかな寛ぎを届ける仕様のゆとりある居室。個室のお部屋が欲しいという要望に応える設計で、過ごす時間が長くてもゆったり落ち着いて過ごせそう!!

居間 家族の会話や笑顔が行き交うリビングで、子供を走り回らせたい。ダイニングテーブルでゆったり食事を堪能。光と風が溢れる開放的なリビングダイニングには、くつろぎの空間を生み自然と家族みんなが集まってきます

居間 家族の会話や笑顔が行き交うリビングで、子供を走り回らせたい。ダイニングテーブルでゆったり食事を堪能。光と風が溢れる開放的なリビングダイニングには、くつろぎの空間を生み自然と家族みんなが集まってきます

居間 お天気が晴れの日は照明をつけなくても充分明るいリビングです!どこか落ち着きのある広々とした内装です!皆で過ごす空間が、目に浮かんでくる様な優しいリビングダイニングです!くつろいだり楽しい時間を是非!

居間 お天気が晴れの日は照明をつけなくても充分明るいリビングです!どこか落ち着きのある広々とした内装です!皆で過ごす空間が、目に浮かんでくる様な優しいリビングダイニングです!くつろいだり楽しい時間を是非!

居間 リビングにあふれる採光と心地よい風のつどう調和された空間!!生活を彩る充実した日々が過ごせそうです。家族の滞在期間が長くなることを予測して、設計士が思いと工夫をこらした自慢のリビングダイニング!!!

居間 リビングにあふれる採光と心地よい風のつどう調和された空間!!生活を彩る充実した日々が過ごせそうです。家族の滞在期間が長くなることを予測して、設計士が思いと工夫をこらした自慢のリビングダイニング!!!

居間 開放感とプライベート感が見事に両立されたリビングダイニング!通常では相反するファクターがともにそろうと極上のくつろぎ空間が生まれます。だれにも譲りたくない至福の空間で過ごす日々は生活をより豊かにします

居間 開放感とプライベート感が見事に両立されたリビングダイニング!通常では相反するファクターがともにそろうと極上のくつろぎ空間が生まれます。だれにも譲りたくない至福の空間で過ごす日々は生活をより豊かにします

外観 住みやすさとデザイン性を両立させた欲張りな住宅が登場しました 相反しがちなことが相互作用でより良質に!本物だけが表現することができる質の高い機能美はよきものをつなげた古くからの伝統と最新技術の結晶です

外観 住みやすさとデザイン性を両立させた欲張りな住宅が登場しました 相反しがちなことが相互作用でより良質に!本物だけが表現することができる質の高い機能美はよきものをつなげた古くからの伝統と最新技術の結晶です

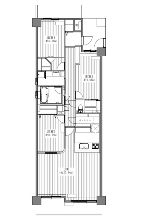
間取り 動線の良い間取りは住む人の使いやすさを一番に考えた設計です!計算されたゆとりとひかりが空間を演出!!永く住むを念頭に日々変化していくライフスタイルにも対応できるように思いやりのつまった間取りです!!!

間取り 動線の良い間取りは住む人の使いやすさを一番に考えた設計です!計算されたゆとりとひかりが空間を演出!!永く住むを念頭に日々変化していくライフスタイルにも対応できるように思いやりのつまった間取りです!!!

キッチン 広く取られたキッチンスペースはとても便利です。 自由にレイアウトがカスタマイズできます。

キッチン 広く取られたキッチンスペースはとても便利です。 自由にレイアウトがカスタマイズできます。

キッチン リビングダイニングが見渡せるカウンターキッチン! お料理をする人も開放感が心地いいです。

キッチン リビングダイニングが見渡せるカウンターキッチン! お料理をする人も開放感が心地いいです。

風呂 ゆったりと寛げる広々バスで足を伸ばしてリラックス。 最新のユニットバスは設備も充実です。

風呂 ゆったりと寛げる広々バスで足を伸ばしてリラックス。 最新のユニットバスは設備も充実です。

トイレ ウォシュレット、保温機能付き便座など充実の設備です お掃除がしやすくストレスフリー!!

トイレ ウォシュレット、保温機能付き便座など充実の設備です お掃除がしやすくストレスフリー!!

洗面 使用頻度の高い場所だからこそ便利な空間に。多人数での使用も考えた便利な空間です

洗面 使用頻度の高い場所だからこそ便利な空間に。多人数での使用も考えた便利な空間です

収納 衣類をスッキリ整理!居室に備え付けの収納で、いつでも片付いた広々空間を実現。快適な暮らしをサポートします!

収納 衣類をスッキリ整理!居室に備え付けの収納で、いつでも片付いた広々空間を実現。快適な暮らしをサポートします!

収納 たっぷり収納できるクローゼットを完備。衣類や小物をすっきり整理でき、毎日の身支度も快適に。

収納 たっぷり収納できるクローゼットを完備。衣類や小物をすっきり整理でき、毎日の身支度も快適に。

バルコニー 太陽の光と爽やかな風を受けられるバルコニーです。太陽の匂いを感じられそうです!

バルコニー 太陽の光と爽やかな風を受けられるバルコニーです。太陽の匂いを感じられそうです!

その他 シューズクロークには靴の収納以外のもとても便利です。ベビーカーやアウトドアグッズもスッキリと

その他 シューズクロークには靴の収納以外のもとても便利です。ベビーカーやアウトドアグッズもスッキリと

その他 明るく広い玄関には収納力に優れたシューズボックス。 靴をスッキリと整頓することができます。

その他 明るく広い玄関には収納力に優れたシューズボックス。 靴をスッキリと整頓することができます。

その他 青空を背景にスタイリッシュな外観が住まう人に誇りを与えます。駅周辺施設も利用でき快適生活が送れます!四季を通じて自然と触れ合えるスポットが周辺には沢山あり、お散歩やジョギング週末の遊びにおすすめです。

その他 青空を背景にスタイリッシュな外観が住まう人に誇りを与えます。駅周辺施設も利用でき快適生活が送れます!四季を通じて自然と触れ合えるスポットが周辺には沢山あり、お散歩やジョギング週末の遊びにおすすめです。

周辺 横浜市立城郷小学校まで約910m

周辺 横浜市立城郷小学校まで約910m

周辺 横浜市立篠原中学校まで約1470m

周辺 横浜市立篠原中学校まで約1470m

周辺 JR新横浜駅まで徒歩13分(約1040m)

周辺 JR新横浜駅まで徒歩13分(約1040m)

内装 健やかな時間を過ごせるプライベートルームはとても大切です!!インテリアにも合わせやすいカラーリング!それぞれの居室に思い思いのコーディネートをしてより空間を演出することでよりいっそう大事にな空間に!
内装 居室はひとり時間を過ごせる安らげるお部屋として活用できます!収納スペースあり!荷物が多くても十分!!ベッドや勉強机、テレビなどを置きたい場合におすすめ!!過ごす時間が長くてもゆったり過ごせそうですね!
内装 自分の時間を充実させながら心豊かにできるプライベート空間!!穏やかな寛ぎを届ける仕様のゆとりある居室。個室のお部屋が欲しいという要望に応える設計で、過ごす時間が長くてもゆったり落ち着いて過ごせそう!!
居間 家族の会話や笑顔が行き交うリビングで、子供を走り回らせたい。ダイニングテーブルでゆったり食事を堪能。光と風が溢れる開放的なリビングダイニングには、くつろぎの空間を生み自然と家族みんなが集まってきます
居間 お天気が晴れの日は照明をつけなくても充分明るいリビングです!どこか落ち着きのある広々とした内装です!皆で過ごす空間が、目に浮かんでくる様な優しいリビングダイニングです!くつろいだり楽しい時間を是非!
居間 リビングにあふれる採光と心地よい風のつどう調和された空間!!生活を彩る充実した日々が過ごせそうです。家族の滞在期間が長くなることを予測して、設計士が思いと工夫をこらした自慢のリビングダイニング!!!
居間 開放感とプライベート感が見事に両立されたリビングダイニング!通常では相反するファクターがともにそろうと極上のくつろぎ空間が生まれます。だれにも譲りたくない至福の空間で過ごす日々は生活をより豊かにします
外観 住みやすさとデザイン性を両立させた欲張りな住宅が登場しました 相反しがちなことが相互作用でより良質に!本物だけが表現することができる質の高い機能美はよきものをつなげた古くからの伝統と最新技術の結晶です
間取り 動線の良い間取りは住む人の使いやすさを一番に考えた設計です!計算されたゆとりとひかりが空間を演出!!永く住むを念頭に日々変化していくライフスタイルにも対応できるように思いやりのつまった間取りです!!!
キッチン 広く取られたキッチンスペースはとても便利です。 自由にレイアウトがカスタマイズできます。
キッチン リビングダイニングが見渡せるカウンターキッチン! お料理をする人も開放感が心地いいです。
風呂 ゆったりと寛げる広々バスで足を伸ばしてリラックス。 最新のユニットバスは設備も充実です。
トイレ ウォシュレット、保温機能付き便座など充実の設備です お掃除がしやすくストレスフリー!!
洗面 使用頻度の高い場所だからこそ便利な空間に。多人数での使用も考えた便利な空間です
収納 衣類をスッキリ整理!居室に備え付けの収納で、いつでも片付いた広々空間を実現。快適な暮らしをサポートします!
収納 たっぷり収納できるクローゼットを完備。衣類や小物をすっきり整理でき、毎日の身支度も快適に。
バルコニー 太陽の光と爽やかな風を受けられるバルコニーです。太陽の匂いを感じられそうです!
その他 シューズクロークには靴の収納以外のもとても便利です。ベビーカーやアウトドアグッズもスッキリと
その他 明るく広い玄関には収納力に優れたシューズボックス。 靴をスッキリと整頓することができます。
その他 青空を背景にスタイリッシュな外観が住まう人に誇りを与えます。駅周辺施設も利用でき快適生活が送れます!四季を通じて自然と触れ合えるスポットが周辺には沢山あり、お散歩やジョギング週末の遊びにおすすめです。
周辺 横浜市立城郷小学校まで約910m
周辺 横浜市立篠原中学校まで約1470m
周辺 JR新横浜駅まで徒歩13分(約1040m)
販売価格
6,880 万円
間取り
3 LDK
延床面積
95.55㎡(28.9坪)
エリア
神奈川県横浜市港北区
沿線・最寄駅
JR横浜線「新横浜」駅 徒歩13分
横浜市ブルーライン「岸根公園」駅 徒歩14分
-物件見学のご予約- ご希望があれば周辺環境もご案内をいたします。 日程:随時見学可能 ■ご予約方法 受付: メールの場合:【資料請求】ボタンをクリック♪
【JR横浜線「新横浜」駅まで徒歩13分!中古マンション・3LDK】 両面バルコニー付きの角部屋のため日当たり・通風良好! 新規内装リフォーム完了済◎毎日の家事に便利な食洗機や浴室乾燥機も新設! 複数路線利用可能。周辺施設も充実した生活便利な住環境です♪

物件情報

物件名
コスモ新横浜
築年月
2000年07月(築25年)
間取り
3 LDK
所在階/階数
7階  /  11階建
販売価格
6,880万円
建ぺい率
80%
容積率
600%
現況
引渡
2026年03月
取引態様
媒介
管理費
月額14,300円
管理形態
全部委託(巡回管理)
修繕積立金
月額25,100円

共通概要

種別
中古売マンション
所在地
神奈川県横浜市港北区新横浜1丁目14-8
交通
JR横浜線「新横浜」駅 徒歩13分
横浜市ブルーライン「岸根公園」駅 徒歩14分
構造
RC
土地権利
所有権
専有面積

合計95.55㎡ 28.9坪
用途地域
商業地域
駐車場
有 /
駐車場月額: 18,000円

物件の設備・条件

設備・機能
上水道/下水道/給湯/都市ガス/フローリング
バルコニー・庭
バルコニー
キッチン
浄水器/食器洗浄乾燥機/システムキッチン
収納
全居室収納
立地・環境
角部屋

会社情報

商号
朝日土地建物株式会社 横浜支店
会社住所
神奈川県横浜市西区北幸一丁目11-11-1F
会社電話番号
0120-72-4311
免許番号
国土交通大臣(9)第3744号

情報公開日・更新予定日

情報公開日
2026/01/25
次回更新予定日
情報提供より8日以内に更新
取引条件有効期限
-

情報提供元:ミノリノ
画像提供元:ミノリノ
※各種情報と現状に差異がある場合は、現状優先となります。詳細は取扱店舗までご確認ください。

コスモ新横浜(神奈川県横浜市港北区)のリノベーション向き中古マンションはいかがでしたか?気になる点は資料請求や問い合わせでチェック!画像だけではわからないコスモ新横浜の魅力がきっと見つかります。

コスモ新横浜(神奈川県横浜市港北区)のリノベーション向き中古マンションの物件情報はいかがでしたか?最新の販売状況の確認やリノベーションのポイントなど、気になる点は資料請求や問い合わせで確かめることがおすすめです。画像だけではわからないコスモ新横浜の魅力がきっと見つかります。