リノベ不動産 renove fudosan 日本住を、愉快に。 ローン相談、物件探し、設計・施工、入居後のインテリア提案までリノベ不動産が一貫してサポート。 WEAR_ロゴ 日本住を、愉快に。
  • リノベーション向き物件
  • 中古マンション

クレドール保土ケ谷月見台

内装 健やかな時間を過ごせるプライベートルームはとても大切です!!インテリアにも合わせやすいカラーリング!それぞれの居室に思い思いのコーディネートをしてより空間を演出することでよりいっそう大事にな空間に!

内装 健やかな時間を過ごせるプライベートルームはとても大切です!!インテリアにも合わせやすいカラーリング!それぞれの居室に思い思いのコーディネートをしてより空間を演出することでよりいっそう大事にな空間に!

内装 居室はひとり時間を過ごせる安らげるお部屋として活用できます!収納スペースあり!荷物が多くても十分!!ベッドや勉強机、テレビなどを置きたい場合におすすめ!!過ごす時間が長くてもゆったり過ごせそうですね!

内装 居室はひとり時間を過ごせる安らげるお部屋として活用できます!収納スペースあり!荷物が多くても十分!!ベッドや勉強机、テレビなどを置きたい場合におすすめ!!過ごす時間が長くてもゆったり過ごせそうですね!

内装 自分の時間を充実させながら心豊かにできるプライベート空間!!穏やかな寛ぎを届ける仕様のゆとりある居室。個室のお部屋が欲しいという要望に応える設計で、過ごす時間が長くてもゆったり落ち着いて過ごせそう!!

内装 自分の時間を充実させながら心豊かにできるプライベート空間!!穏やかな寛ぎを届ける仕様のゆとりある居室。個室のお部屋が欲しいという要望に応える設計で、過ごす時間が長くてもゆったり落ち着いて過ごせそう!!

内装 採光を確保した明るい室内は風通しも良く穏やかな時が流れます!様々な生活スタイルにも対応可能な間取り。採光もアクセントの一つとして。この明るい好みの空間で読書をしたり、音楽を聞いたりと一人の時間も充実!

内装 採光を確保した明るい室内は風通しも良く穏やかな時が流れます!様々な生活スタイルにも対応可能な間取り。採光もアクセントの一つとして。この明るい好みの空間で読書をしたり、音楽を聞いたりと一人の時間も充実!

居間 家族の会話や笑顔が行き交うリビングで、子供を走り回らせたい。ダイニングテーブルでゆったり食事を堪能。光と風が溢れる開放的なリビングダイニングには、くつろぎの空間を生み自然と家族みんなが集まってきます

居間 家族の会話や笑顔が行き交うリビングで、子供を走り回らせたい。ダイニングテーブルでゆったり食事を堪能。光と風が溢れる開放的なリビングダイニングには、くつろぎの空間を生み自然と家族みんなが集まってきます

居間 お天気が晴れの日は照明をつけなくても充分明るいリビングです!どこか落ち着きのある広々とした内装です!皆で過ごす空間が、目に浮かんでくる様な優しいリビングダイニングです!くつろいだり楽しい時間を是非!

居間 お天気が晴れの日は照明をつけなくても充分明るいリビングです!どこか落ち着きのある広々とした内装です!皆で過ごす空間が、目に浮かんでくる様な優しいリビングダイニングです!くつろいだり楽しい時間を是非!

居間 リビングにあふれる採光と心地よい風のつどう調和された空間!!生活を彩る充実した日々が過ごせそうです。家族の滞在期間が長くなることを予測して、設計士が思いと工夫をこらした自慢のリビングダイニング!!!

居間 リビングにあふれる採光と心地よい風のつどう調和された空間!!生活を彩る充実した日々が過ごせそうです。家族の滞在期間が長くなることを予測して、設計士が思いと工夫をこらした自慢のリビングダイニング!!!

居間 開放感とプライベート感が見事に両立されたリビングダイニング!通常では相反するファクターがともにそろうと極上のくつろぎ空間が生まれます。だれにも譲りたくない至福の空間で過ごす日々は生活をより豊かにします

居間 開放感とプライベート感が見事に両立されたリビングダイニング!通常では相反するファクターがともにそろうと極上のくつろぎ空間が生まれます。だれにも譲りたくない至福の空間で過ごす日々は生活をより豊かにします

外観 住みやすさとデザイン性を両立させた欲張りな住宅が登場しました 相反しがちなことが相互作用でより良質に!本物だけが表現することができる質の高い機能美はよきものをつなげた古くからの伝統と最新技術の結晶です

外観 住みやすさとデザイン性を両立させた欲張りな住宅が登場しました 相反しがちなことが相互作用でより良質に!本物だけが表現することができる質の高い機能美はよきものをつなげた古くからの伝統と最新技術の結晶です

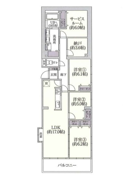
間取り 動線の良い間取りは住む人の使いやすさを一番に考えた設計です!計算されたゆとりとひかりが空間を演出!!永く住むを念頭に日々変化していくライフスタイルにも対応できるように思いやりのつまった間取りです!!!

間取り 動線の良い間取りは住む人の使いやすさを一番に考えた設計です!計算されたゆとりとひかりが空間を演出!!永く住むを念頭に日々変化していくライフスタイルにも対応できるように思いやりのつまった間取りです!!!

キッチン 広く取られたキッチンスペースはとても便利です。 自由にレイアウトがカスタマイズできます。

キッチン 広く取られたキッチンスペースはとても便利です。 自由にレイアウトがカスタマイズできます。

キッチン リビングダイニングが見渡せるカウンターキッチン! お料理をする人も開放感が心地いいです。

キッチン リビングダイニングが見渡せるカウンターキッチン! お料理をする人も開放感が心地いいです。

キッチン 最新のシステムキッチンは使い勝手が良好です。  気持ちよく料理ができます。

キッチン 最新のシステムキッチンは使い勝手が良好です。  気持ちよく料理ができます。

風呂 ゆったりと寛げる広々バスで足を伸ばしてリラックス。 最新のユニットバスは設備も充実です。

風呂 ゆったりと寛げる広々バスで足を伸ばしてリラックス。 最新のユニットバスは設備も充実です。

トイレ ウォシュレット、保温機能付き便座など充実の設備です お掃除がしやすくストレスフリー!!

トイレ ウォシュレット、保温機能付き便座など充実の設備です お掃除がしやすくストレスフリー!!

洗面 使用頻度の高い場所だからこそ便利な空間に。多人数での使用も考えた便利な空間です

洗面 使用頻度の高い場所だからこそ便利な空間に。多人数での使用も考えた便利な空間です

洗面 広々としたスペースで収納もばっちり!

洗面 広々としたスペースで収納もばっちり!

バルコニー 太陽の光と爽やかな風を受けられるバルコニーです。太陽の匂いを感じられそうです!

バルコニー 太陽の光と爽やかな風を受けられるバルコニーです。太陽の匂いを感じられそうです!

その他 明るく広い玄関には収納力に優れたシューズボックス。 靴をスッキリと整頓することができます。

その他 明るく広い玄関には収納力に優れたシューズボックス。 靴をスッキリと整頓することができます。

その他 青空を背景にスタイリッシュな外観が住まう人に誇りを与えます。駅周辺施設も利用でき快適生活が送れます!四季を通じて自然と触れ合えるスポットが周辺には沢山あり、お散歩やジョギング週末の遊びにおすすめです。

その他 青空を背景にスタイリッシュな外観が住まう人に誇りを与えます。駅周辺施設も利用でき快適生活が送れます!四季を通じて自然と触れ合えるスポットが周辺には沢山あり、お散歩やジョギング週末の遊びにおすすめです。

周辺 横浜市立桜台小学校まで約680m

周辺 横浜市立桜台小学校まで約680m

周辺 横浜市立岩崎中学校まで約1300m

周辺 横浜市立岩崎中学校まで約1300m

周辺 JR保土ヶ谷駅まで徒歩7分(約560m)

周辺 JR保土ヶ谷駅まで徒歩7分(約560m)

内装 健やかな時間を過ごせるプライベートルームはとても大切です!!インテリアにも合わせやすいカラーリング!それぞれの居室に思い思いのコーディネートをしてより空間を演出することでよりいっそう大事にな空間に!
内装 居室はひとり時間を過ごせる安らげるお部屋として活用できます!収納スペースあり!荷物が多くても十分!!ベッドや勉強机、テレビなどを置きたい場合におすすめ!!過ごす時間が長くてもゆったり過ごせそうですね!
内装 自分の時間を充実させながら心豊かにできるプライベート空間!!穏やかな寛ぎを届ける仕様のゆとりある居室。個室のお部屋が欲しいという要望に応える設計で、過ごす時間が長くてもゆったり落ち着いて過ごせそう!!
内装 採光を確保した明るい室内は風通しも良く穏やかな時が流れます!様々な生活スタイルにも対応可能な間取り。採光もアクセントの一つとして。この明るい好みの空間で読書をしたり、音楽を聞いたりと一人の時間も充実!
居間 家族の会話や笑顔が行き交うリビングで、子供を走り回らせたい。ダイニングテーブルでゆったり食事を堪能。光と風が溢れる開放的なリビングダイニングには、くつろぎの空間を生み自然と家族みんなが集まってきます
居間 お天気が晴れの日は照明をつけなくても充分明るいリビングです!どこか落ち着きのある広々とした内装です!皆で過ごす空間が、目に浮かんでくる様な優しいリビングダイニングです!くつろいだり楽しい時間を是非!
居間 リビングにあふれる採光と心地よい風のつどう調和された空間!!生活を彩る充実した日々が過ごせそうです。家族の滞在期間が長くなることを予測して、設計士が思いと工夫をこらした自慢のリビングダイニング!!!
居間 開放感とプライベート感が見事に両立されたリビングダイニング!通常では相反するファクターがともにそろうと極上のくつろぎ空間が生まれます。だれにも譲りたくない至福の空間で過ごす日々は生活をより豊かにします
外観 住みやすさとデザイン性を両立させた欲張りな住宅が登場しました 相反しがちなことが相互作用でより良質に!本物だけが表現することができる質の高い機能美はよきものをつなげた古くからの伝統と最新技術の結晶です
間取り 動線の良い間取りは住む人の使いやすさを一番に考えた設計です!計算されたゆとりとひかりが空間を演出!!永く住むを念頭に日々変化していくライフスタイルにも対応できるように思いやりのつまった間取りです!!!
キッチン 広く取られたキッチンスペースはとても便利です。 自由にレイアウトがカスタマイズできます。
キッチン リビングダイニングが見渡せるカウンターキッチン! お料理をする人も開放感が心地いいです。
キッチン 最新のシステムキッチンは使い勝手が良好です。  気持ちよく料理ができます。
風呂 ゆったりと寛げる広々バスで足を伸ばしてリラックス。 最新のユニットバスは設備も充実です。
トイレ ウォシュレット、保温機能付き便座など充実の設備です お掃除がしやすくストレスフリー!!
洗面 使用頻度の高い場所だからこそ便利な空間に。多人数での使用も考えた便利な空間です
洗面 広々としたスペースで収納もばっちり!
バルコニー 太陽の光と爽やかな風を受けられるバルコニーです。太陽の匂いを感じられそうです!
その他 明るく広い玄関には収納力に優れたシューズボックス。 靴をスッキリと整頓することができます。
その他 青空を背景にスタイリッシュな外観が住まう人に誇りを与えます。駅周辺施設も利用でき快適生活が送れます!四季を通じて自然と触れ合えるスポットが周辺には沢山あり、お散歩やジョギング週末の遊びにおすすめです。
周辺 横浜市立桜台小学校まで約680m
周辺 横浜市立岩崎中学校まで約1300m
周辺 JR保土ヶ谷駅まで徒歩7分(約560m)
販売価格
5,190 万円
間取り
3 SLDK
延床面積
99.07㎡(29.97坪)
エリア
神奈川県横浜市保土ケ谷区
沿線・最寄駅
JR横須賀線「保土ヶ谷」駅 徒歩7分
湘南新宿ライン「保土ヶ谷」駅 徒歩7分
-物件見学のご予約- ご希望があれば周辺環境もご案内をいたします。 日程:随時見学可能 ■ご予約方法 受付: メールの場合:【資料請求】ボタンをクリック♪
【JR横須賀線「保土ケ谷」駅まで徒歩7分!中古マンション・3sLDK】 洗面所には洗面台が2台☆朝の仕度で混むことがなく、生活リズムが違っても気になりません♪ 各室収納完備◎さらに納戸やサービスルームもあるので生活空間が広々とした印象になり、来客時にも困りません☆ LDKにはドアが2つ!お買い物の後と来客時などで分けられ、家事導線もよく快適にお過ごしいただけます♪

物件情報

物件名
クレドール保土ケ谷月見台
築年月
1997年08月(築28年)
間取り
3 SLDK
所在階/階数
2階  /  8階建地下1階
販売価格
5,190万円
建ぺい率
50%
容積率
100%
現況
引渡
2026年01月
取引態様
媒介
管理費
月額12,380円
管理形態
全部委託(日勤管理)
修繕積立金
月額20,800円

共通概要

種別
中古売マンション
所在地
神奈川県横浜市保土ケ谷区月見台32-8
交通
JR横須賀線「保土ヶ谷」駅 徒歩7分
湘南新宿ライン「保土ヶ谷」駅 徒歩7分
構造
RC
土地権利
所有権
専有面積

合計99.07㎡ 29.97坪
用途地域
1種低層
駐車場
有 /
駐車場月額: 20,000円

物件の設備・条件

設備・機能
上水道/下水道/給湯/都市ガス/出窓/フローリング
バルコニー・庭
バルコニー
キッチン
システムキッチン
駐車場
バイク置き場
収納
全居室収納

会社情報

商号
朝日土地建物株式会社 横浜支店
会社住所
神奈川県横浜市西区北幸一丁目11-11-1F
会社電話番号
0120-72-4311
免許番号
国土交通大臣(9)第3744号

情報公開日・更新予定日

情報公開日
2026/01/22
次回更新予定日
情報提供より8日以内に更新
取引条件有効期限
-

情報提供元:ミノリノ
画像提供元:ミノリノ
※各種情報と現状に差異がある場合は、現状優先となります。詳細は取扱店舗までご確認ください。

クレドール保土ケ谷月見台(神奈川県横浜市保土ケ谷区)のリノベーション向き中古マンションはいかがでしたか?気になる点は資料請求や問い合わせでチェック!画像だけではわからないクレドール保土ケ谷月見台の魅力がきっと見つかります。

クレドール保土ケ谷月見台(神奈川県横浜市保土ケ谷区)のリノベーション向き中古マンションの物件情報はいかがでしたか?最新の販売状況の確認やリノベーションのポイントなど、気になる点は資料請求や問い合わせで確かめることがおすすめです。画像だけではわからないクレドール保土ケ谷月見台の魅力がきっと見つかります。