リノベ不動産 renove fudosan 日本住を、愉快に。 ローン相談、物件探し、設計・施工、入居後のインテリア提案までリノベ不動産が一貫してサポート。 WEAR_ロゴ 日本住を、愉快に。
  • リノベーション向き物件
  • 中古戸建て

【安心を買うなら、朝日土地建物へ】神奈川区菅田町 中古戸建

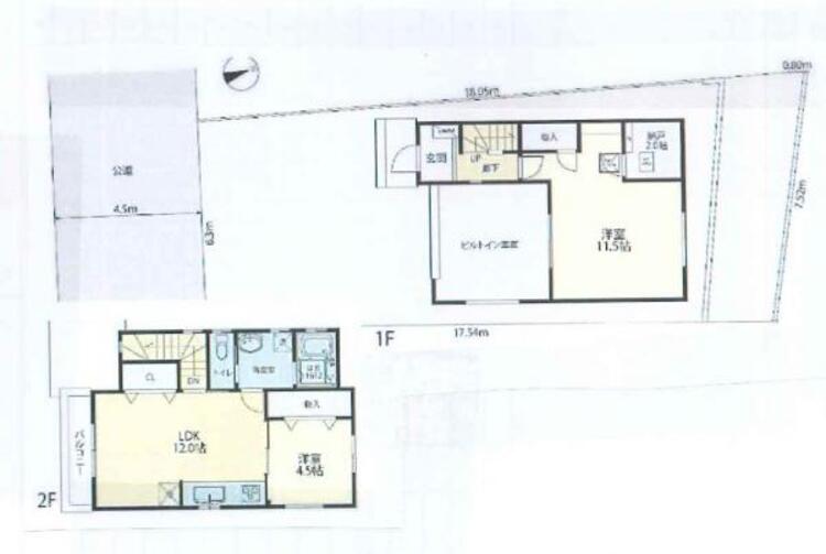
間取り

間取り

周辺 横浜市立菅田の丘小学校950m

周辺 横浜市立菅田の丘小学校950m

周辺 横浜市立菅田中学校1200m

周辺 横浜市立菅田中学校1200m

周辺 鴨居駅2080m

周辺 鴨居駅2080m

周辺 西菅田保育園600m

周辺 西菅田保育園600m

周辺 保育園こりす810m

周辺 保育園こりす810m

周辺 大野屋菅田店880m

周辺 大野屋菅田店880m

周辺 FUJI菅田1070m

周辺 FUJI菅田1070m

周辺 小川橋医院450m

周辺 小川橋医院450m

周辺 菅田台町公園310m

周辺 菅田台町公園310m

間取り
周辺 横浜市立菅田の丘小学校950m
周辺 横浜市立菅田中学校1200m
周辺 鴨居駅2080m
周辺 西菅田保育園600m
周辺 保育園こりす810m
周辺 大野屋菅田店880m
周辺 FUJI菅田1070m
周辺 小川橋医院450m
周辺 菅田台町公園310m
販売価格
3,300 万円
間取り
2 LDK
延床面積
エリア
神奈川県横浜市神奈川区
沿線・最寄駅
JR横浜線「鴨居」駅 バス10分 徒歩4分
横浜市ブルーライン「片倉町」駅 バス18分 徒歩4分
地域密着だからこそ‥ 豊富な物件情報と“街”のご紹介◎ 我々だからこその‥ご提案とおもてなし♪ 心から「よかった」と思える住まい、安心のおとりつぎ。 朝日土地建物中山支店でご来店をお待ちしております!
〜*ASAHI TOCHI*〜 ◆普通車4台駐車可能!(車種による) ◇全居室収納スペース有 ◆南向きバルコニーは陽当り良好です ◇ガスは都市ガスになります

* * * * 住まい、安心のおとりつぎ * * * * おかげさまで42周年を迎えることができました♪ ご成約件数7万件達成!! ☆当日のご見学も対応可能です! ☆JR横浜線「中山」駅徒歩1分! ☆ご予約は『朝日土地建物中山店』まで! 朝日土地建物グループは地域密着を合言葉に 全13店舗でその地域No.1を目指しております。 広告掲載していない物件も多数ございます。 色々廻ったけど良い物件が無いなぁ・・ 頭金無くても平気・・? お家の買替えってどうするの・・?etc. まずは何でもお気軽にご相談ください! 有資格者が丁寧にご説明させていただきます! お問い合わせをお待ちしております!!

物件情報

物件名
【安心を買うなら、朝日土地建物へ】神奈川区菅田町 中古戸建
築年月
2010年11月(築15年)
間取り
2 LDK
接道状況
南側 公道 接面4.5m
階数
2階建
販売価格
3,300万円
建ぺい率
40%
容積率
80%
地積
125.64㎡ (公簿)
地目
宅地
現況
引渡
2026年01月
取引態様
媒介

共通概要

種別
中古売戸建
所在地
神奈川県横浜市神奈川区菅田町985-37
交通
JR横浜線「鴨居」駅 バス10分 徒歩4分
横浜市ブルーライン「片倉町」駅 バス18分 徒歩4分
構造
木造
土地権利
所有権
用途地域
1種低層
地目
宅地
都市計画
市街化区域
駐車場
有 /

物件の設備・条件

設備・機能
上水道/下水道/都市ガス/フローリング
セキュリティー
モニタ付インターホン
キッチン
システムキッチン
収納
床下収納/全居室収納

会社情報

商号
朝日土地建物株式会社 朝日土地建物株式会社中山支店
会社住所
神奈川県横浜市緑区中山一丁目6-3
会社電話番号
0459294311
免許番号
国土交通大臣(9)第3744号

情報公開日・更新予定日

情報公開日
2026/01/19
次回更新予定日
情報提供より8日以内に更新
取引条件有効期限
-

情報提供元:ミノリノ
画像提供元:ミノリノ
※各種情報と現状に差異がある場合は、現状優先となります。詳細は取扱店舗までご確認ください。

【安心を買うなら、朝日土地建物へ】神奈川区菅田町中古戸建(神奈川県横浜市神奈川区)のリノベーション向き中古戸建てはいかがでしたか?気になる点は資料請求や問い合わせでチェック!画像だけではわからない【安心を買うなら、朝日土地建物へ】神奈川区菅田町中古戸建の魅力がきっと見つかります。

【安心を買うなら、朝日土地建物へ】神奈川区菅田町中古戸建(神奈川県横浜市神奈川区)のリノベーション向き中古戸建ての物件情報はいかがでしたか?最新の販売状況の確認やリノベーションのポイントなど、気になる点は資料請求や問い合わせで確かめることがおすすめです。画像だけではわからない【安心を買うなら、朝日土地建物へ】神奈川区菅田町中古戸建の魅力がきっと見つかります。