リノベ不動産 renove fudosan 日本住を、愉快に。 ローン相談、物件探し、設計・施工、入居後のインテリア提案までリノベ不動産が一貫してサポート。 WEAR_ロゴ 日本住を、愉快に。
  • リノベーション向き物件
  • 中古戸建て

中古戸建 日ノ出町

内装 廊下も大きい採光窓から光が入り、明るい印象です。

内装 廊下も大きい採光窓から光が入り、明るい印象です。

居間 ●〇明るく開放的な空間が広がるLDK。豊かな陽光が注ぎ込み爽やかな住空間を演出。ホームパーティーでもゲストと一緒に料理を楽しみながら楽しい時間を過ごせそう。広々としたLDKは床の掃除も楽です●

居間 ●〇明るく開放的な空間が広がるLDK。豊かな陽光が注ぎ込み爽やかな住空間を演出。ホームパーティーでもゲストと一緒に料理を楽しみながら楽しい時間を過ごせそう。広々としたLDKは床の掃除も楽です●

居間 ●〇仕事も趣味も子どもの成長も、ぜんぶ同じ屋根の下で無理なく両立できる間取り。帰るたび『うち最高』と自慢したくなる新築戸建、ここから新生活スタート。さあ今日から胸を張れるマイホームにしませんか〇●

居間 ●〇仕事も趣味も子どもの成長も、ぜんぶ同じ屋根の下で無理なく両立できる間取り。帰るたび『うち最高』と自慢したくなる新築戸建、ここから新生活スタート。さあ今日から胸を張れるマイホームにしませんか〇●

居間 吹き抜けからこぼれる光はリビングルームに優しく降り注ぎます。

居間 吹き抜けからこぼれる光はリビングルームに優しく降り注ぎます。

外観 ●〇住むほどに深まる愛着、使い込むほどに馴染む風合いを大切にしていただけるデザインに。周辺の利便性や豊かな住環境など立地面でも魅力が多く、今も、これからもずっとここで生活したい。そう思える住宅です〇●

外観 ●〇住むほどに深まる愛着、使い込むほどに馴染む風合いを大切にしていただけるデザインに。周辺の利便性や豊かな住環境など立地面でも魅力が多く、今も、これからもずっとここで生活したい。そう思える住宅です〇●

外観 ●〇光と風が行わたる開放感あふれる邸宅 春には気持ちの良いそよ風、冬には朝の暖かな光 季節の移り変わりを感じる暮らしを実現。四季の移ろいを感じる事ができる住宅は生活に潤いを与え、豊かな心を育みます〇●

外観 ●〇光と風が行わたる開放感あふれる邸宅 春には気持ちの良いそよ風、冬には朝の暖かな光 季節の移り変わりを感じる暮らしを実現。四季の移ろいを感じる事ができる住宅は生活に潤いを与え、豊かな心を育みます〇●

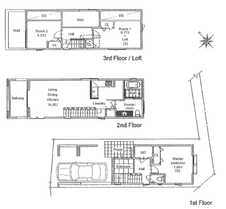
間取り 間取り図

間取り 間取り図

キッチン ●〇見た目はスタイリッシュ、中身は家事ラク主義。回遊動線やたっぷりの収納など暮らしのストレスを小さくする工夫を丁寧に詰め込んだ、頼れる一邸です。忙しい毎日に、ちょっとした余裕をくれる家です。〇●

キッチン ●〇見た目はスタイリッシュ、中身は家事ラク主義。回遊動線やたっぷりの収納など暮らしのストレスを小さくする工夫を丁寧に詰め込んだ、頼れる一邸です。忙しい毎日に、ちょっとした余裕をくれる家です。〇●

洗面 ●〇平日の朝であっても、落ち着きとくつろぎを感じられる。歯磨き粉が行方不明になるようなごちゃごちゃ感も解消。収納力の高い洗面所です。 コーディネートされた空間で気持ちよく身だしなみを整えられます 〇●

洗面 ●〇平日の朝であっても、落ち着きとくつろぎを感じられる。歯磨き粉が行方不明になるようなごちゃごちゃ感も解消。収納力の高い洗面所です。 コーディネートされた空間で気持ちよく身だしなみを整えられます 〇●

収納 【ロフト】まるで秘密基地のような感覚にもなるロフト。ロフトにいると小さい頃のようになんとなくワクワクしてきませんか?

収納 【ロフト】まるで秘密基地のような感覚にもなるロフト。ロフトにいると小さい頃のようになんとなくワクワクしてきませんか?

駐車場 ●〇日々の生活にクルマは欠かせない方は、駐車場確保は大事な条件です。マンションに居住した場合には、月々で駐車料金が掛かります。しかし戸建ての場合は費用負担0。居住費のランニングコストを抑えましょう〇●

駐車場 ●〇日々の生活にクルマは欠かせない方は、駐車場確保は大事な条件です。マンションに居住した場合には、月々で駐車料金が掛かります。しかし戸建ての場合は費用負担0。居住費のランニングコストを抑えましょう〇●

その他 ●〇住まいの第一印象を決める玄関スペース。収納力が高い下足入れを設置しており、高級感と清潔感を演出しました。小窓からの採光で明るい設計です。気持ちの良い気分でお出かけする事ができ、帰宅時も良い気分〇●

その他 ●〇住まいの第一印象を決める玄関スペース。収納力が高い下足入れを設置しており、高級感と清潔感を演出しました。小窓からの採光で明るい設計です。気持ちの良い気分でお出かけする事ができ、帰宅時も良い気分〇●

周辺 横浜市立一本松小学校まで約500m

周辺 横浜市立一本松小学校まで約500m

周辺 横浜市立老松中学校まで約680m

周辺 横浜市立老松中学校まで約680m

周辺 京浜急行電鉄日ノ出町駅まで徒歩13分(約1040m)

周辺 京浜急行電鉄日ノ出町駅まで徒歩13分(約1040m)

内装 廊下も大きい採光窓から光が入り、明るい印象です。
居間 ●〇明るく開放的な空間が広がるLDK。豊かな陽光が注ぎ込み爽やかな住空間を演出。ホームパーティーでもゲストと一緒に料理を楽しみながら楽しい時間を過ごせそう。広々としたLDKは床の掃除も楽です●
居間 ●〇仕事も趣味も子どもの成長も、ぜんぶ同じ屋根の下で無理なく両立できる間取り。帰るたび『うち最高』と自慢したくなる新築戸建、ここから新生活スタート。さあ今日から胸を張れるマイホームにしませんか〇●
居間 吹き抜けからこぼれる光はリビングルームに優しく降り注ぎます。
外観 ●〇住むほどに深まる愛着、使い込むほどに馴染む風合いを大切にしていただけるデザインに。周辺の利便性や豊かな住環境など立地面でも魅力が多く、今も、これからもずっとここで生活したい。そう思える住宅です〇●
外観 ●〇光と風が行わたる開放感あふれる邸宅 春には気持ちの良いそよ風、冬には朝の暖かな光 季節の移り変わりを感じる暮らしを実現。四季の移ろいを感じる事ができる住宅は生活に潤いを与え、豊かな心を育みます〇●
間取り 間取り図
キッチン ●〇見た目はスタイリッシュ、中身は家事ラク主義。回遊動線やたっぷりの収納など暮らしのストレスを小さくする工夫を丁寧に詰め込んだ、頼れる一邸です。忙しい毎日に、ちょっとした余裕をくれる家です。〇●
洗面 ●〇平日の朝であっても、落ち着きとくつろぎを感じられる。歯磨き粉が行方不明になるようなごちゃごちゃ感も解消。収納力の高い洗面所です。 コーディネートされた空間で気持ちよく身だしなみを整えられます 〇●
収納 【ロフト】まるで秘密基地のような感覚にもなるロフト。ロフトにいると小さい頃のようになんとなくワクワクしてきませんか?
駐車場 ●〇日々の生活にクルマは欠かせない方は、駐車場確保は大事な条件です。マンションに居住した場合には、月々で駐車料金が掛かります。しかし戸建ての場合は費用負担0。居住費のランニングコストを抑えましょう〇●
その他 ●〇住まいの第一印象を決める玄関スペース。収納力が高い下足入れを設置しており、高級感と清潔感を演出しました。小窓からの採光で明るい設計です。気持ちの良い気分でお出かけする事ができ、帰宅時も良い気分〇●
周辺 横浜市立一本松小学校まで約500m
周辺 横浜市立老松中学校まで約680m
周辺 京浜急行電鉄日ノ出町駅まで徒歩13分(約1040m)
販売価格
5,490 万円
間取り
2 SLDK
延床面積
エリア
神奈川県横浜市西区
沿線・最寄駅
京急本線「日ノ出町」駅 徒歩13分
横浜市ブルーライン「桜木町」駅 徒歩14分
【京急本線「日ノ出町」駅まで徒歩13分!中古戸建・2SLDK】 2路線3駅が徒歩圏内!横浜駅へのアクセスも良く便利な立地◎ L型キッチン採用、水回りを集約した間取りで家事導線良好♪ ビルトイン車庫完備で悪天候の日の乗り降りも快適です。

物件情報

物件名
中古戸建 日ノ出町
築年月
2019年11月(築6年)
間取り
2 SLDK
接道状況
南西側 私道 接面4m
階数
3階建
販売価格
5,490万円
建ぺい率
60%
容積率
150%
地積
79.55㎡ (公簿)
私道負担面積
272.95㎡
地目
宅地
現況
居住中
引渡
2026年04月
取引態様
専任

共通概要

種別
中古売戸建
所在地
神奈川県横浜市西区西戸部町1丁目63-5
交通
京急本線「日ノ出町」駅 徒歩13分
横浜市ブルーライン「桜木町」駅 徒歩14分
構造
木造
土地権利
所有権
用途地域
2種中高
地目
宅地
都市計画
市街化区域
駐車場
有 /

物件の設備・条件

設備・機能
上水道/下水道/都市ガス/ロフト/複層ガラス/フローリング
バルコニー・庭
バルコニー
キッチン
浄水器/食器洗浄乾燥機/システムキッチン
収納
全居室収納/シューズWIC

会社情報

商号
朝日土地建物株式会社 横浜支店
会社住所
神奈川県横浜市西区北幸一丁目11-11-1F
会社電話番号
0120-72-4311
免許番号
国土交通大臣(9)第3744号

情報公開日・更新予定日

情報公開日
2026/01/08
次回更新予定日
情報提供より8日以内に更新
取引条件有効期限
-

情報提供元:ミノリノ
画像提供元:ミノリノ
※各種情報と現状に差異がある場合は、現状優先となります。詳細は取扱店舗までご確認ください。

中古戸建日ノ出町(神奈川県横浜市西区)のリノベーション向き中古戸建てはいかがでしたか?気になる点は資料請求や問い合わせでチェック!画像だけではわからない中古戸建日ノ出町の魅力がきっと見つかります。

中古戸建日ノ出町(神奈川県横浜市西区)のリノベーション向き中古戸建ての物件情報はいかがでしたか?最新の販売状況の確認やリノベーションのポイントなど、気になる点は資料請求や問い合わせで確かめることがおすすめです。画像だけではわからない中古戸建日ノ出町の魅力がきっと見つかります。