リノベ不動産 renove fudosan 日本住を、愉快に。 ローン相談、物件探し、設計・施工、入居後のインテリア提案までリノベ不動産が一貫してサポート。 WEAR_ロゴ 日本住を、愉快に。
  • リノベーション向き物件
  • 中古マンション

リベール加古川木村クラシック

販売価格
2,300 万円
間取り
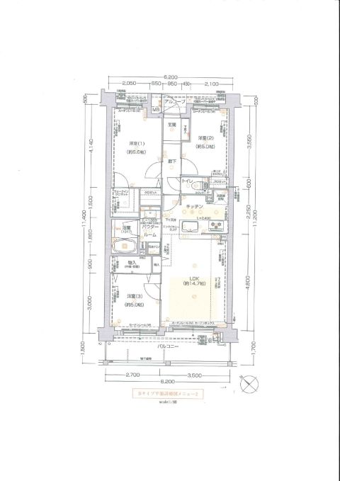
3LDK
延床面積
63.68㎡(19.26坪)(壁芯)
エリア
兵庫県加古川市
沿線・最寄駅
JR山陽本線「加古川」駅 徒歩14分
リベールシリーズ!リノベ向き物件!
ファミリー層、夫婦で二人暮らしなど!

物件情報

物件名
リベール加古川木村クラシック
間取り図
間取り図
間取り図
築年月
2012年10月(築13年)
間取り
3LDK
所在階/階数
2階  /  11階建
販売価格
2,300万円
地積
1756.14㎡ (531.23坪) (公簿)
現況
居住中
引渡
2026年03月
取引態様
専任
管理費
月額8,830円
管理形態
全部委託(日勤管理)
修繕積立金
月額13,800円
小学校区
加古川小学校 (約120m)
中学校区
加古川中学校 (約900m)

共通概要

種別
中古売マンション
所在地
兵庫県加古川市加古川町木村196
交通
JR山陽本線「加古川」駅 徒歩14分
構造
鉄骨
土地権利
所有権
専有面積

合計63.68㎡ 19.26坪 (壁芯)
用途地域
駐車場
有 / 月額5,500円 1台
販売戸数
1戸
月額費用
自治会費 : 600円

物件の設備・条件

設備・機能
室内洗濯機置場/都市ガス
バス・トイレ・洗面所
追焚機能/浴室乾燥機
セキュリティー
オートロック/モニタ付インターホン/モニタ付オートロック
収納
収納スペース/クローゼット
キッチン
食器洗浄乾燥機/システムキッチン/3口以上コンロ
特徴
管理人日勤

広告主の会社情報

店舗名
リノベ不動産|加古川尾上店
会社名
株式会社浜工務店
会社住所
兵庫県加古川市尾上町池田1770-1
会社電話番号
079-424-3730
免許番号
宅地建物取引業者:兵庫県知事免許(01)第401634号 一級建築士事務所 兵庫県(一級)400678号 建設業許可:兵庫県知事(般-03)第401951号
所属団体

情報公開日・更新予定日

情報公開日
2025/12/04
次回更新予定日
情報提供より8日以内に更新
取引条件有効期限
-

リベール加古川木村クラシック(兵庫県加古川市)のリノベーション向き中古マンションはいかがでしたか?気になる点は資料請求や問い合わせでチェック!画像だけではわからないリベール加古川木村クラシックの魅力がきっと見つかります。

リベール加古川木村クラシック(兵庫県加古川市)のリノベーション向き中古マンションの物件情報はいかがでしたか?最新の販売状況の確認やリノベーションのポイントなど、気になる点は資料請求や問い合わせで確かめることがおすすめです。画像だけではわからないリベール加古川木村クラシックの魅力がきっと見つかります。