リノベ不動産 renove fudosan 日本住を、愉快に。 ローン相談、物件探し、設計・施工、入居後のインテリア提案までリノベ不動産が一貫してサポート。 WEAR_ロゴ 日本住を、愉快に。
  • リノベーション向き物件
  • 中古マンション

パシフィック新川

外観写真

外観写真

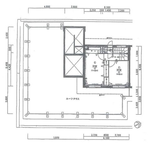
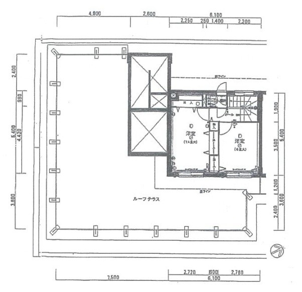
10階平面図

10階平面図

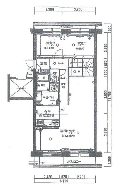
9階平面図

9階平面図

外観写真
10階平面図
9階平面図
販売価格
2,480 万円
間取り
3 LDK
延床面積
105.54㎡(31.92坪)(壁芯)
エリア
北海道札幌市北区
沿線・最寄駅
JR札沼線「新川」駅 徒歩5分
最上階メゾネットタイプ!眺望良好!広々105.54㎡!JR「新川」駅徒歩5分!

支払額シミュレーション

パシフィック新川

  • 間取り: 3 LDK
  • 面積: 31.92坪(壁芯)

中古マンション
販売価格

2,480万円

参考リノベ費用

500万円

提携ローン

0.95%

毎月のお支払い 83,429円

物件情報

物件名
パシフィック新川
間取り図
間取り図
間取り図
築年月
1990年01月(築36年)
間取り
3 LDK
所在階/階数
9階  /  10階建地下1階
水道
公営水道
汚水
公共下水
販売価格
2,480万円
建ぺい率
60%
容積率
200%
地積
6912.06㎡ (2090.89坪) (公簿)
地目
宅地
現況
居住中
引渡
2026年03月
取引態様
媒介
管理費
月額12,680円
管理形態
一部委託(日勤管理)
修繕積立金
月額13,720円
小学校区
新川中央小学校 (約220m)
中学校区
新川中学校 (約120m)

共通概要

種別
中古売マンション
所在地
北海道札幌市北区新川三条3丁目3-35
交通
JR札沼線「新川」駅 徒歩5分
構造
RC 陸屋根
土地権利
所有権
専有面積

合計105.54㎡ 31.92坪 (壁芯)
用途地域
2種中高
地目
宅地
都市計画
市街化区域
駐車場
有 / 月額5,000円
販売戸数
1戸

物件の設備・条件

設備・機能
室内洗濯機置場/エレベータ
バルコニー・庭
2面バルコニー
キッチン
カウンタキッチン
共用設備
駐輪場
駐車場
バイク置き場
諸条件・相談
ペット相談
立地・環境
日当り良好
特徴
管理人日勤
工法・構造・仕様
メゾネット/最上階

広告主の会社情報

店舗名
リノベ不動産|札幌豊平店
会社名
株式会社リノベクラス
会社住所
北海道札幌市豊平区豊平2条11丁目1番14号
会社電話番号
011-827-8918
免許番号
宅地建物取引業:北海道知事 石狩(1)第9423号 建築士事務所登録:北海道知事(石)第5199号 建設業許可:北海道知事(般-5)第24853号
所属団体
北海道宅地建物取引業協会

情報公開日・更新予定日

情報公開日
2026/01/27
次回更新予定日
情報提供より8日以内に更新
取引条件有効期限
-

パシフィック新川(北海道札幌市北区)のリノベーション向き中古マンションはいかがでしたか?気になる点は資料請求や問い合わせでチェック!画像だけではわからないパシフィック新川の魅力がきっと見つかります。

パシフィック新川(北海道札幌市北区)のリノベーション向き中古マンションの物件情報はいかがでしたか?最新の販売状況の確認やリノベーションのポイントなど、気になる点は資料請求や問い合わせで確かめることがおすすめです。画像だけではわからないパシフィック新川の魅力がきっと見つかります。