リノベ不動産 renove fudosan 日本住を、愉快に。 ローン相談、物件探し、設計・施工、入居後のインテリア提案までリノベ不動産が一貫してサポート。 WEAR_ロゴ 日本住を、愉快に。
  • リノベーション向き物件
  • 中古マンション

アーバンタワー己斐

現況:3LDK(専有面積68.04㎡)

現況:3LDK(専有面積68.04㎡)

リノベーションA案(間取り変更)※掲載画像はリノベーション例となります。

リノベーションA案(間取り変更)※掲載画像はリノベーション例となります。

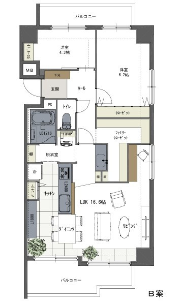
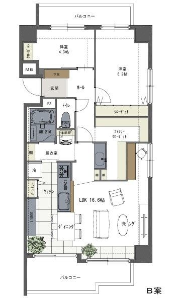
リノベーションB案(間取り変更)※掲載画像はリノベーション例となります。

リノベーションB案(間取り変更)※掲載画像はリノベーション例となります。

リノベーションC案(間取り変更)※掲載画像はリノベーション例となります。

リノベーションC案(間取り変更)※掲載画像はリノベーション例となります。

現況:3LDK(専有面積68.04㎡)

現況:3LDK(専有面積68.04㎡)

現況:3LDK(専有面積68.04㎡)
リノベーションA案(間取り変更)※掲載画像はリノベーション例となります。
リノベーションB案(間取り変更)※掲載画像はリノベーション例となります。
リノベーションA案(間取り変更)※掲載画像はリノベーション例となります。
現況:3LDK(専有面積68.04㎡)
販売価格
1,800 万円
間取り
3 LDK
延床面積
68.04㎡(20.58坪)(壁芯)
エリア
広島県広島市西区
沿線・最寄駅
JR山陽本線「西広島」駅 徒歩12分
広島電鉄宮島線「広電西広島(己斐)」駅 徒歩15分

物件情報

物件名
アーバンタワー己斐
間取り図
間取り図
間取り図
築年月
1995年03月(築30年)
間取り
3 LDK
所在階/階数
2階  /  10階建
販売価格
1,800万円
引渡
2026年01月
取引態様
媒介
管理費
月額6,100円
管理形態
全部委託(日勤管理)
修繕積立金
月額9,100円
小学校区
己斐小学校
中学校区
己斐中学校

共通概要

種別
中古売マンション
所在地
広島県広島市西区己斐上1丁目6-18
交通
JR山陽本線「西広島」駅 徒歩12分
広島電鉄宮島線「広電西広島(己斐)」駅 徒歩15分
構造
RC
土地権利
所有権
専有面積

合計68.04㎡ 20.58坪 (壁芯)
用途地域
駐車場
有 / 月額7,000円
要確認
販売戸数
1戸

物件の設備・条件

設備・機能
エレベータ
バルコニー・庭
3面バルコニー
共用設備
宅配BOX

広告主の会社情報

店舗名
リノベ不動産|広島可部南店
会社名
株式会社エヌ工房
会社住所
広島県広島市安佐北区可部南3丁目1-10-2F
会社電話番号
082-815-3567
免許番号
宅地建物取引業者免許 広島県知事(1)第11359号 建設業許可      広島県知事(般-4)第31612号 一級建築士事務所登録 22(1)第3709号
所属団体

情報公開日・更新予定日

情報公開日
2025/11/13
次回更新予定日
情報提供より8日以内に更新
取引条件有効期限
-

アーバンタワー己斐(広島県広島市西区)のリノベーション向き中古マンションはいかがでしたか?気になる点は資料請求や問い合わせでチェック!画像だけではわからないアーバンタワー己斐の魅力がきっと見つかります。

アーバンタワー己斐(広島県広島市西区)のリノベーション向き中古マンションの物件情報はいかがでしたか?最新の販売状況の確認やリノベーションのポイントなど、気になる点は資料請求や問い合わせで確かめることがおすすめです。画像だけではわからないアーバンタワー己斐の魅力がきっと見つかります。