リノベ不動産 renove fudosan 日本住を、愉快に。 ローン相談、物件探し、設計・施工、入居後のインテリア提案までリノベ不動産が一貫してサポート。 WEAR_ロゴ 日本住を、愉快に。
  • リノベーション向き物件
  • 中古マンション

ダイヤパレス落合

現況:3LDK(専有面積61.74㎡)

現況:3LDK(専有面積61.74㎡)

リノベーションA案(間取り変更)※掲載画像はリノベーション例となります。

リノベーションA案(間取り変更)※掲載画像はリノベーション例となります。

リノベーションB案(間取り変更)※掲載画像はリノベーション例となります。

リノベーションB案(間取り変更)※掲載画像はリノベーション例となります。

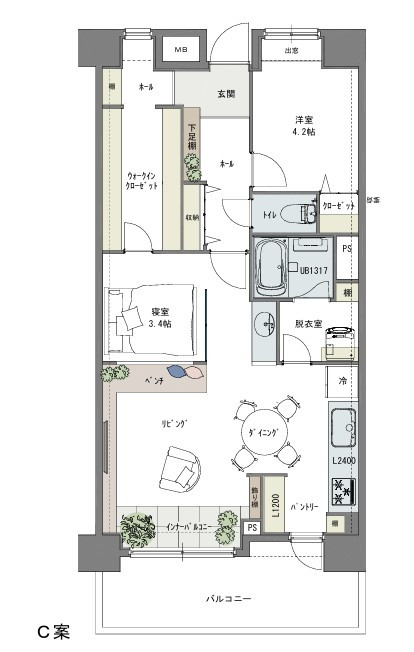
リノベーションC案(間取り変更)※掲載画像はリノベーション例となります。

リノベーションC案(間取り変更)※掲載画像はリノベーション例となります。

リノベーション例(LDK)※掲載画像はリノベーション例となります。

リノベーション例(LDK)※掲載画像はリノベーション例となります。

リノベーション例(リビング)※掲載画像はリノベーション例となります。

リノベーション例(リビング)※掲載画像はリノベーション例となります。

リノベーション例(ダイニング)※掲載画像はリノベーション例となります。

リノベーション例(ダイニング)※掲載画像はリノベーション例となります。

リノベーション例(玄関)※掲載画像はリノベーション例となります。

リノベーション例(玄関)※掲載画像はリノベーション例となります。

現況:3LDK(専有面積61.74㎡)

現況:3LDK(専有面積61.74㎡)

現況:3LDK(専有面積61.74㎡)
リノベーションA案(間取り変更)※掲載画像はリノベーション例となります。
リノベーションB案(間取り変更)※掲載画像はリノベーション例となります。
リノベーションA案(間取り変更)※掲載画像はリノベーション例となります。
リノベーション例(LDK)※掲載画像はリノベーション例となります。
リノベーション例(リビング)※掲載画像はリノベーション例となります。
リノベーション例(ダイニング)※掲載画像はリノベーション例となります。
リノベーション例(玄関)※掲載画像はリノベーション例となります。
現況:3LDK(専有面積61.74㎡)
販売価格
1,100 万円
間取り
3 LDK
延床面積
61.74㎡(18.67坪)(壁芯)
エリア
広島県広島市安佐北区
沿線・最寄駅

物件情報

物件名
ダイヤパレス落合
間取り図
間取り図
間取り図
築年月
1994年02月(築31年)
間取り
3 LDK
所在階/階数
5階  /  9階建
販売価格
1,100万円
引渡
2025年12月
取引態様
媒介
管理費
月額7,600円
管理形態
全部委託(日勤管理)
修繕積立金
月額10,900円
小学校区
落合東小学校
中学校区
落合中学校

共通概要

種別
中古売マンション
所在地
広島県広島市安佐北区落合1丁目48-1
交通

構造
RC
土地権利
専有面積

合計61.74㎡ 18.67坪 (壁芯)
用途地域

物件の設備・条件

設備・機能
エレベータ

広告主の会社情報

店舗名
リノベ不動産|広島可部南店
会社名
株式会社エヌ工房
会社住所
広島県広島市安佐北区可部南3丁目1-10-2F
会社電話番号
082-815-3567
免許番号
宅地建物取引業者免許 広島県知事(1)第11359号 建設業許可      広島県知事(般-4)第31612号 一級建築士事務所登録 22(1)第3709号
所属団体

情報公開日・更新予定日

情報公開日
2025/10/15
次回更新予定日
情報提供より8日以内に更新
取引条件有効期限
-

ダイヤパレス落合(広島県広島市安佐北区)のリノベーション向き中古マンションはいかがでしたか?気になる点は資料請求や問い合わせでチェック!画像だけではわからないダイヤパレス落合の魅力がきっと見つかります。

ダイヤパレス落合(広島県広島市安佐北区)のリノベーション向き中古マンションの物件情報はいかがでしたか?最新の販売状況の確認やリノベーションのポイントなど、気になる点は資料請求や問い合わせで確かめることがおすすめです。画像だけではわからないダイヤパレス落合の魅力がきっと見つかります。