リノベ不動産 renove fudosan 日本住を、愉快に。 ローン相談、物件探し、設計・施工、入居後のインテリア提案までリノベ不動産が一貫してサポート。 WEAR_ロゴ 日本住を、愉快に。
  • リノベーション向き物件
  • 中古マンション

クレアセトル草津

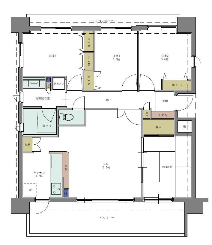
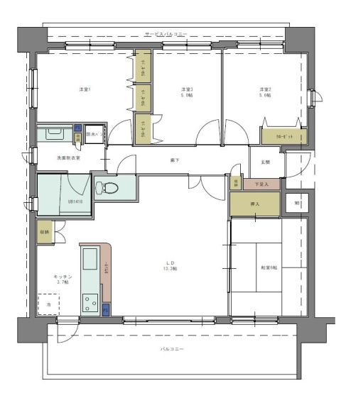
現況:4LDK(専有面積86.32㎡)

現況:4LDK(専有面積86.32㎡)

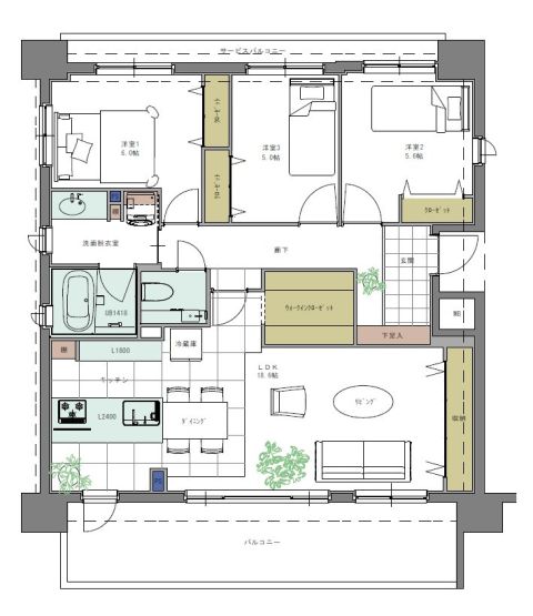
リノベーションA案(間取り変更)※掲載画像はリノベーション例となります。

リノベーションA案(間取り変更)※掲載画像はリノベーション例となります。

リノベーション例(リビング全体)※掲載画像はリノベーション例となります。

リノベーション例(リビング全体)※掲載画像はリノベーション例となります。

リノベーション例(ダイニング)※掲載画像はリノベーション例となります。

リノベーション例(ダイニング)※掲載画像はリノベーション例となります。

リノベーション例(キッチン・ダイニング)※掲載画像はリノベーション例となります。

リノベーション例(キッチン・ダイニング)※掲載画像はリノベーション例となります。

リノベーション例(全体)※掲載画像はリノベーション例となります。

リノベーション例(全体)※掲載画像はリノベーション例となります。

リノベーション例(全体)※掲載画像はリノベーション例となります。

リノベーション例(全体)※掲載画像はリノベーション例となります。

リノベーションB案(間取り変更)※掲載画像はリノベーション例となります。

リノベーションB案(間取り変更)※掲載画像はリノベーション例となります。

現況:4LDK(専有面積86.32㎡)

現況:4LDK(専有面積86.32㎡)

現況:4LDK(専有面積86.32㎡)
リノベーションA案(間取り変更)※掲載画像はリノベーション例となります。
リノベーション例(リビング全体)※掲載画像はリノベーション例となります。
リノベーションA案(間取り変更)※掲載画像はリノベーション例となります。
リノベーション例(キッチン・ダイニング)※掲載画像はリノベーション例となります。
リノベーション例(全体)※掲載画像はリノベーション例となります。
リノベーション例(全体)※掲載画像はリノベーション例となります。
リノベーションB案(間取り変更)※掲載画像はリノベーション例となります。
現況:4LDK(専有面積86.32㎡)
販売価格
3,180 万円
間取り
4 LDK
延床面積
86.32㎡(26.11坪)(壁芯)
エリア
広島県広島市西区
沿線・最寄駅
広島電鉄宮島線「草津」駅 徒歩5分
JR山陽本線「新井口」駅 徒歩16分

物件情報

物件名
クレアセトル草津
間取り図
間取り図
間取り図
築年月
2007年03月(築19年)
間取り
4 LDK
所在階/階数
3階  /  9階建
販売価格
3,180万円
引渡
2026年03月
取引態様
媒介
管理費
月額13,800円
管理形態
全部委託(日勤管理)
修繕積立金
月額25,000円
小学校区
草津小学校
中学校区
庚午中学校

共通概要

種別
中古売マンション
所在地
広島県広島市西区草津浜町4-16
交通
広島電鉄宮島線「草津」駅 徒歩5分
JR山陽本線「新井口」駅 徒歩16分
構造
RC
土地権利
専有面積

合計86.32㎡ 26.11坪 (壁芯)
用途地域

物件の設備・条件

設備・機能
エレベータ
バルコニー・庭
2面バルコニー
諸条件・相談
ペット相談
立地・環境
角部屋/3面採光

広告主の会社情報

店舗名
リノベ不動産|広島可部南店
会社名
株式会社エヌ工房
会社住所
広島県広島市安佐北区可部南3丁目1-10-2F
会社電話番号
082-815-3567
免許番号
宅地建物取引業者免許 広島県知事(1)第11359号 建設業許可      広島県知事(般-4)第31612号 一級建築士事務所登録 22(1)第3709号
所属団体

情報公開日・更新予定日

情報公開日
2024/09/17
次回更新予定日
情報提供より8日以内に更新
取引条件有効期限
-

クレアセトル草津(広島県広島市西区)のリノベーション向き中古マンションはいかがでしたか?気になる点は資料請求や問い合わせでチェック!画像だけではわからないクレアセトル草津の魅力がきっと見つかります。

クレアセトル草津(広島県広島市西区)のリノベーション向き中古マンションの物件情報はいかがでしたか?最新の販売状況の確認やリノベーションのポイントなど、気になる点は資料請求や問い合わせで確かめることがおすすめです。画像だけではわからないクレアセトル草津の魅力がきっと見つかります。