リノベ不動産 renove fudosan 日本住を、愉快に。 ローン相談、物件探し、設計・施工、入居後のインテリア提案までリノベ不動産が一貫してサポート。 WEAR_ロゴ 日本住を、愉快に。
  • リノベーション向き物件
  • 中古戸建て

群馬県邑楽郡大泉町古海中古住宅

1LDK 人気の平屋

1LDK 人気の平屋

庭付きなので家庭菜園やガーデニングも

庭付きなので家庭菜園やガーデニングも

広々としたサイズで日々の疲れを癒せます

広々としたサイズで日々の疲れを癒せます

赤のキッチン!素敵ですよ

赤のキッチン!素敵ですよ

IHクッキングヒーターなので安全性、お手入れもしやすく助かります

IHクッキングヒーターなので安全性、お手入れもしやすく助かります

1LDK 人気の平屋
庭付きなので家庭菜園やガーデニングも
広々としたサイズで日々の疲れを癒せます
庭付きなので家庭菜園やガーデニングも
IHクッキングヒーターなので安全性、お手入れもしやすく助かります
販売価格
1,800 万円
間取り
1LDK+S
延床面積
56.25㎡(17.01坪)(内法)
エリア
群馬県邑楽郡大泉町
沿線・最寄駅

閑静な住宅地 オール電化 太陽光発電 トヨタホームの素敵なお家

物件情報

物件名
群馬県邑楽郡大泉町古海中古住宅
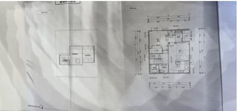
間取り図
間取り図
間取り図
築年月
2019年03月(築7年)
間取り
1LDK+S
階数
ガス
水道
公営水道
汚水
公共下水
販売価格
1,800万円
建ぺい率
40%
容積率
80%
地積
171.91㎡ (52坪) (公簿)
地目
宅地
現況
居住中
引渡
2026年03月
取引態様
一般
小学校区
南小学校 (約3000m)
中学校区
南中学校 (約3000m)

共通概要

種別
中古売戸建
所在地
群馬県邑楽郡大泉町大字古海
交通

構造
鉄骨
土地権利
所有権
建物面積

合計56.25㎡ 17.01坪 (内法)
用途地域
1種低層
地目
宅地
都市計画
市街化区域
駐車場
有 / 2台

物件の設備・条件

設備・機能
電気/上水道/下水道/浄化槽/オール電化/太陽光発電システム
バルコニー・庭
庭/ウッドデッキ
工法・構造・仕様
駐車場2台分
立地・環境
日当り良好/閑静な住宅街
特徴
オール電化

広告主の会社情報

店舗名
リノベ不動産|太田駅店
会社名
協和建設株式会社
会社住所
群馬県太田市飯田町1242-2
会社電話番号
0276-46-2921
免許番号
宅地建物取引業者 : 群馬県知事(1)第7896号 建設業許可 : 群馬県知事許可 特ー3 第176号
所属団体
群馬県宅地建物取引業協会
群馬県不動産事業協同組合
群馬県建設業協会
太田商工会議所

情報公開日・更新予定日

情報公開日
2025/12/21
次回更新予定日
情報提供より8日以内に更新
取引条件有効期限
-

群馬県邑楽郡大泉町古海中古住宅(群馬県邑楽郡大泉町)のリノベーション向き中古戸建てはいかがでしたか?気になる点は資料請求や問い合わせでチェック!画像だけではわからない群馬県邑楽郡大泉町古海中古住宅の魅力がきっと見つかります。

群馬県邑楽郡大泉町古海中古住宅(群馬県邑楽郡大泉町)のリノベーション向き中古戸建ての物件情報はいかがでしたか?最新の販売状況の確認やリノベーションのポイントなど、気になる点は資料請求や問い合わせで確かめることがおすすめです。画像だけではわからない群馬県邑楽郡大泉町古海中古住宅の魅力がきっと見つかります。