リノベ不動産 renove fudosan 日本住を、愉快に。 ローン相談、物件探し、設計・施工、入居後のインテリア提案までリノベ不動産が一貫してサポート。 WEAR_ロゴ 日本住を、愉快に。
  • リノベーション向き物件
  • 中古戸建て

前橋市下新田町 中古住宅

南側からたっぷりと日差しが入り、室内は一日を通して明るく心地よい空間です。暖かい陽光に包まれた暮らしを叶えられる、陽当たりの良い住まいです。

南側からたっぷりと日差しが入り、室内は一日を通して明るく心地よい空間です。暖かい陽光に包まれた暮らしを叶えられる、陽当たりの良い住まいです。

玄関には大きな吹き抜けが広がり、自然光がたっぷりと差し込む開放的な空間が魅力です。

玄関には大きな吹き抜けが広がり、自然光がたっぷりと差し込む開放的な空間が魅力です。

高さのある天井と明るさが、帰宅時に心地よいゆとりを感じさせ、住まい全体に上質な印象を与えてくれます。

高さのある天井と明るさが、帰宅時に心地よいゆとりを感じさせ、住まい全体に上質な印象を与えてくれます。

8帖と6帖の和室はリビングとつながっており、開放感のある一体的な空間として使えるのが魅力です。

8帖と6帖の和室はリビングとつながっており、開放感のある一体的な空間として使えるのが魅力です。

来客時の応接やお子さまの遊び場、くつろぎスペースなど、多目的に活用でき、暮らしの幅がぐっと広がります。

来客時の応接やお子さまの遊び場、くつろぎスペースなど、多目的に活用でき、暮らしの幅がぐっと広がります。

2階ホールにはロフトが設けられており、まるで秘密基地のようなワクワク感のある空間が魅力です。収納や趣味スペースとして自由に使え、暮らしに遊び心をプラスしてくれます。

2階ホールにはロフトが設けられており、まるで秘密基地のようなワクワク感のある空間が魅力です。収納や趣味スペースとして自由に使え、暮らしに遊び心をプラスしてくれます。

地形は旗竿地ですが道路から住まいが離れて配置されるため、人目が気になりにくく、静かで落ち着いた生活環境を確保できる点が大きな魅力です。

地形は旗竿地ですが道路から住まいが離れて配置されるため、人目が気になりにくく、静かで落ち着いた生活環境を確保できる点が大きな魅力です。

広々とした庭スペースがあり、ガーデニングや家庭菜園など、思い思いの使い方を楽しめます。お好みに合わせて手を加えれば、さらに魅力的なプライベートガーデンとして活用できる伸びしろのあるお庭です。

広々とした庭スペースがあり、ガーデニングや家庭菜園など、思い思いの使い方を楽しめます。お好みに合わせて手を加えれば、さらに魅力的なプライベートガーデンとして活用できる伸びしろのあるお庭です。

南側にはコンパクトなテラスも備わっており、明るい陽射しの中でゆったりと過ごせるスペースです。

南側にはコンパクトなテラスも備わっており、明るい陽射しの中でゆったりと過ごせるスペースです。

車種によりますが、3台駐車可能です。

車種によりますが、3台駐車可能です。

6LDKのゆとりある間取りで、家族みんながのびのびと過ごせる住まいです。

6LDKのゆとりある間取りで、家族みんながのびのびと過ごせる住まいです。

南側からたっぷりと日差しが入り、室内は一日を通して明るく心地よい空間です。暖かい陽光に包まれた暮らしを叶えられる、陽当たりの良い住まいです。
玄関には大きな吹き抜けが広がり、自然光がたっぷりと差し込む開放的な空間が魅力です。
高さのある天井と明るさが、帰宅時に心地よいゆとりを感じさせ、住まい全体に上質な印象を与えてくれます。
玄関には大きな吹き抜けが広がり、自然光がたっぷりと差し込む開放的な空間が魅力です。
来客時の応接やお子さまの遊び場、くつろぎスペースなど、多目的に活用でき、暮らしの幅がぐっと広がります。
2階ホールにはロフトが設けられており、まるで秘密基地のようなワクワク感のある空間が魅力です。収納や趣味スペースとして自由に使え、暮らしに遊び心をプラスしてくれます。
地形は旗竿地ですが道路から住まいが離れて配置されるため、人目が気になりにくく、静かで落ち着いた生活環境を確保できる点が大きな魅力です。
広々とした庭スペースがあり、ガーデニングや家庭菜園など、思い思いの使い方を楽しめます。お好みに合わせて手を加えれば、さらに魅力的なプライベートガーデンとして活用できる伸びしろのあるお庭です。
南側にはコンパクトなテラスも備わっており、明るい陽射しの中でゆったりと過ごせるスペースです。
車種によりますが、3台駐車可能です。
6LDKのゆとりある間取りで、家族みんながのびのびと過ごせる住まいです。
販売価格
1,680 万円
間取り
6 LDK
延床面積
175.77㎡(53.17坪)(内法)
エリア
群馬県前橋市
沿線・最寄駅
JR上越線「新前橋」駅 バス23分 徒歩2分
リフォームやリノベーションが必要な物件ですが、お客様のご希望に合わせて最適な工事内容をご提案し、しっかりお見積りいたします。理想の住まいづくりを一緒に形にしていけるチャンスです。

支払額シミュレーション

前橋市下新田町 中古住宅

  • 間取り: 6 LDK
  • 面積: 53.17坪(内法)

中古戸建て
販売価格

1,680万円

参考リノベ費用

500万円

提携ローン

0.875%

毎月のお支払い 60,276円

物件情報

物件名
前橋市下新田町 中古住宅
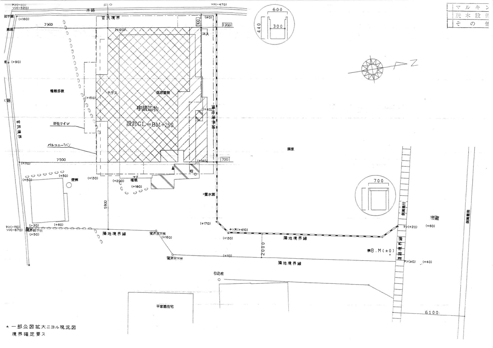
間取り図
間取り図
間取り図
築年月
1997年04月(築28年)
間取り
6 LDK
接道状況
北側 公道 接道幅6m 接面3m
階数
2階建
ガス
水道
公営水道
汚水
公共下水
販売価格
1,680万円
建ぺい率
40%
容積率
80%
地積
356.18㎡ (107.74坪) (公簿)
地目
宅地
現況
居住中
引渡
2025年12月
取引態様
一般
小学校区
新田小学校 (約1056m)
中学校区
箱田中学校 (約1794m)

共通概要

種別
中古売戸建
所在地
群馬県前橋市下新田町
交通
JR上越線「新前橋」駅 バス23分 徒歩2分
構造
軽量鉄骨 セメント瓦葺
土地権利
所有権
建物面積
1階98.07㎡  2階77.70㎡ 
合計175.77㎡ 53.17坪 (内法)
用途地域
1種低層
地目
宅地
都市計画
市街化区域
駐車場
有 / 無料 3台
販売戸数
1戸

物件の設備・条件

設備・機能
電気/上水道/下水道/太陽光発電システム/オール電化
キッチン
IHクッキングヒータ/カウンタキッチン/システムキッチン
バルコニー・庭
庭/ウッドデッキ
バス・トイレ・洗面所
洗髪洗面化粧台/温水洗浄便座/トイレ2ヶ所
収納
クローゼット/シューズボックス/パントリー
セキュリティー
シャッター雨戸
冷暖房
ビルトインエアコン

広告主の会社情報

店舗名
リノベ不動産|前橋南店
会社名
菊川工業株式会社
会社住所
群馬県前橋市文京町三丁目34番地1
会社電話番号
027‐289‐0148
免許番号
宅地建物取引業免許 群馬県知事(15)第1063号 建設業免許 群馬県知事 第001115号
所属団体
(一社)群馬県宅地建物取引業協会

情報公開日・更新予定日

情報公開日
2025/11/29
次回更新予定日
情報提供より8日以内に更新
取引条件有効期限
-

前橋市下新田町中古住宅(群馬県前橋市)のリノベーション向き中古戸建てはいかがでしたか?気になる点は資料請求や問い合わせでチェック!画像だけではわからない前橋市下新田町中古住宅の魅力がきっと見つかります。

前橋市下新田町中古住宅(群馬県前橋市)のリノベーション向き中古戸建ての物件情報はいかがでしたか?最新の販売状況の確認やリノベーションのポイントなど、気になる点は資料請求や問い合わせで確かめることがおすすめです。画像だけではわからない前橋市下新田町中古住宅の魅力がきっと見つかります。