リノベ不動産 renove fudosan 日本住を、愉快に。 ローン相談、物件探し、設計・施工、入居後のインテリア提案までリノベ不動産が一貫してサポート。 WEAR_ロゴ 日本住を、愉快に。
  • リノベーション向き物件

大野城市南ヶ丘分譲地1号地

現地写真(1号地・2号地)

現地写真(1号地・2号地)

1号地 現地写真

1号地 現地写真

1号地 現地写真

1号地 現地写真

※区画ごとの間取りプラン例

※区画ごとの間取りプラン例

※建物プラン例(1号地)建物価格2280.3万円、建物面積95.12㎡、土地価格2750万円、土地面積174.79㎡

※建物プラン例(1号地)建物価格2280.3万円、建物面積95.12㎡、土地価格2750万円、土地面積174.79㎡

※建物プラン例

※建物プラン例

※内観プラン例

※内観プラン例

区画図(全2区画)

区画図(全2区画)

現地写真(1号地・2号地)
1号地 現地写真
1号地 現地写真
1号地 現地写真
※建物プラン例(1号地)建物価格2280.3万円、建物面積95.12㎡、土地価格2750万円、土地面積174.79㎡
※建物プラン例
※内観プラン例
区画図(全2区画)
販売価格
2,750 万円
土地面積
174.79㎡(52.87坪)(公簿)
エリア
福岡県大野城市
沿線・最寄駅
JR鹿児島本線「水城」駅 バス6分 徒歩4分
【大野城市南ヶ丘】全2区画分譲開始!平坦・整形地で叶える理想の住まい
・周辺環境が充実しており、日常生活に必要な施設が揃っています。
・南ヶ丘四つ角バス停まで徒歩4分、大野南小学校まで徒歩7分と通勤通学にも便利な角地物件です。

≪建物の特徴≫
■安心の定額制なのに完全自由設計。
■最新の設備や仕様から選べる。
■建物は全棟耐震等級3。全棟に許容応力度計算を行います。構造計算にて安全証明書を発行します。
■高品質だから長期保証も充実。建物初期20年保証・最長60年間の保証付き。
■大地震に備える制振力を発揮する制振ダンパーを標準採用。
■家全体を魔法瓶のように包み込み、ZEH基準の高性能住宅。
■人も家も呼吸しているから、いつも新鮮な空気の入れ替えを行う換気システムを標準採用。

物件情報

物件名
大野城市南ヶ丘分譲地1号地
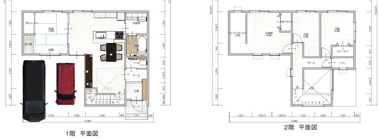
間取り図
間取り図
間取り図
接道状況
南西側 公道 接道幅4.1m 接面12.9m
ガス
LPG
水道
公営水道
汚水
公共下水
販売価格
2,750万円
建ぺい率
50%
容積率
60%
地積
174.79㎡ (52.87坪) (公簿)
地目
宅地
現況
更地
引渡
2026年03月
取引態様
売主
小学校区
大野南小学校 (約450m)
中学校区
平野中学校 (約800m)

共通概要

種別
売地
所在地
福岡県大野城市南ケ丘7丁目
交通
JR鹿児島本線「水城」駅 バス6分 徒歩4分
土地権利
所有権
用途地域
1種低層
地目
宅地
駐車場
有 / 2台
※駐車場台数は建築プランによります。
販売戸数
1戸
造成工事完了年月
2026年03月

物件の設備・条件

設備・機能
電気/上水道/下水道/側溝/プロパンガス
立地・環境
整形地

広告主の会社情報

店舗名
リノベ不動産|太宰府インター店
会社名
株式会社オカショー
会社住所
福岡県大野城市東大利 3 丁目 3 番 1 号
会社電話番号
0120-150-573
免許番号
福岡県知事(1)第20102号
所属団体
公益社団法人不動産保証協会福岡県本部
公益社団法人不動産保証協会

情報公開日・更新予定日

情報公開日
2026/03/23
次回更新予定日
情報提供より8日以内に更新
取引条件有効期限
-

大野城市南ヶ丘分譲地1号地(福岡県大野城市)のリノベーション向きはいかがでしたか?気になる点は資料請求や問い合わせでチェック!画像だけではわからない大野城市南ヶ丘分譲地1号地の魅力がきっと見つかります。

大野城市南ヶ丘分譲地1号地(福岡県大野城市)のリノベーション向きの物件情報はいかがでしたか?最新の販売状況の確認やリノベーションのポイントなど、気になる点は資料請求や問い合わせで確かめることがおすすめです。画像だけではわからない大野城市南ヶ丘分譲地1号地の魅力がきっと見つかります。