リノベ不動産 renove fudosan 日本住を、愉快に。 ローン相談、物件探し、設計・施工、入居後のインテリア提案までリノベ不動産が一貫してサポート。 WEAR_ロゴ 日本住を、愉快に。
  • リノベーション済み物件
  • 中古マンション

ヴォルフスガルテン二日市

LDKは約16.7帖です。家具の配置もしやすいリビングです。

LDKは約16.7帖です。家具の配置もしやすいリビングです。

地上5階地下1階建マンションの2階部分の物件です。

地上5階地下1階建マンションの2階部分の物件です。

キッチンは対面式のシステムキッチンです。リビングのご家族と会話を楽しみながら家事をすることが出来ます。

キッチンは対面式のシステムキッチンです。リビングのご家族と会話を楽しみながら家事をすることが出来ます。

LDK別角度です。

LDK別角度です。

お風呂です。新規交換済みで安心です。

お風呂です。新規交換済みで安心です。

洗面台も新規交換済みです。

洗面台も新規交換済みです。

トイレも新規交換済みです。

トイレも新規交換済みです。

7.1帖の洋室。

7.1帖の洋室。

7.1帖の洋室別角度

7.1帖の洋室別角度

5.5帖の洋室

5.5帖の洋室

5.5帖の洋室別角度。スライドドアでリビングとつながり開放的なスペースとなります。

5.5帖の洋室別角度。スライドドアでリビングとつながり開放的なスペースとなります。

廊下です。柔らかな雰囲気に仕上がっております。

廊下です。柔らかな雰囲気に仕上がっております。

玄関です。シューズボックス完備です。

玄関です。シューズボックス完備です。

共用部

共用部

共用部

共用部

2025年10月にリノベーションが完了している物件です。

2025年10月にリノベーションが完了している物件です。

LDKは約16.7帖です。家具の配置もしやすいリビングです。
地上5階地下1階建マンションの2階部分の物件です。
キッチンは対面式のシステムキッチンです。リビングのご家族と会話を楽しみながら家事をすることが出来ます。
地上5階地下1階建マンションの2階部分の物件です。
お風呂です。新規交換済みで安心です。
洗面台も新規交換済みです。
トイレも新規交換済みです。
7.1帖の洋室。
7.1帖の洋室別角度
5.5帖の洋室
5.5帖の洋室別角度。スライドドアでリビングとつながり開放的なスペースとなります。
廊下です。柔らかな雰囲気に仕上がっております。
玄関です。シューズボックス完備です。
共用部
共用部
2025年10月にリノベーションが完了している物件です。
販売価格
2,090 万円
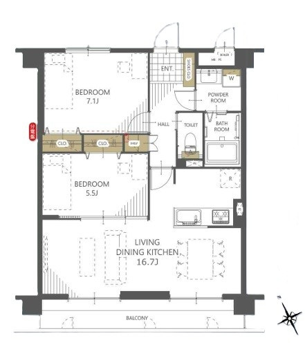
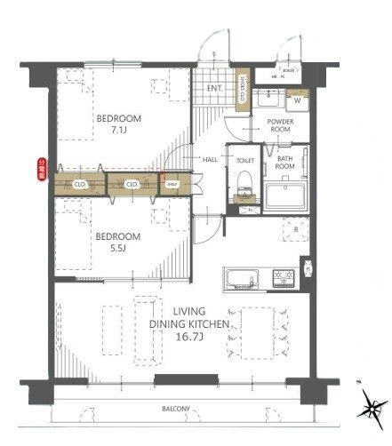
間取り
2LDK
延床面積
63.22㎡(19.12坪)(壁芯)
エリア
福岡県筑紫野市
沿線・最寄駅
西鉄天神大牟田線「紫」駅 徒歩5分
西鉄「紫」駅徒歩5分!駅近リノベーション済み2LDKが登場!

■2025年10月にリノベーションが完了している物件です。
■JR鹿児島線「二日市」駅までも徒歩16分と利用可能な便利な立地です。
■LDKは約16.7帖と広々。ご家族でゆったりとお過ごしいただけます。
■商業施設のイオン二日市やコンビニ、ドラッグストア、病院、郵便局、公園など生活に便利な施設が充実しております。
■駐車場の空き状況は管理会社に都度確認となります。平面駐車場で、月額6000円~8000円です。

物件情報

物件名
ヴォルフスガルテン二日市
間取り図
間取り図
間取り図
築年月
1989年09月(築36年)
間取り
2LDK
所在階/階数
2階  /  5階建地下1階
販売価格
2,090万円
現況
引渡
2026年01月
取引態様
一般
管理費
月額5,000円
管理形態
全部委託
修繕積立金
月額10,800円
小学校区
二日市北小学校 (約880m)
中学校区
二日市中学校 (約520m)

共通概要

種別
中古売マンション
所在地
福岡県筑紫野市紫1丁目
交通
西鉄天神大牟田線「紫」駅 徒歩5分
構造
RC
土地権利
所有権
専有面積

合計63.22㎡ 19.12坪 (壁芯)
用途地域
1種中高
駐車場
有 / 月額6,000円
※6000~8000円/月額※空き状況は管理会社に要確認
販売戸数
1戸

物件の設備・条件

設備・機能
室内洗濯機置場/エレベータ/全居室フローリング
収納
収納スペース/クローゼット/シューズボックス
キッチン
システムキッチン/3口以上コンロ
バス・トイレ・洗面所
温水洗浄便座

広告主の会社情報

店舗名
リノベ不動産|太宰府インター店
会社名
株式会社オカショー
会社住所
福岡県大野城市東大利 3 丁目 3 番 1 号
会社電話番号
0120-150-573
免許番号
福岡県知事(1)第20102号
所属団体
公益社団法人不動産保証協会福岡県本部
公益社団法人不動産保証協会

情報公開日・更新予定日

情報公開日
2025/11/27
次回更新予定日
情報提供より8日以内に更新
取引条件有効期限
-

ヴォルフスガルテン二日市(福岡県筑紫野市)のリノベーション済み中古マンションはいかがでしたか?気になる点は資料請求や問い合わせでチェック!画像だけではわからないヴォルフスガルテン二日市の魅力がきっと見つかります。

ヴォルフスガルテン二日市(福岡県筑紫野市)のリノベーション済み中古マンションの物件情報はいかがでしたか?最新の販売状況の確認やリノベーションのポイントなど、気になる点は資料請求や問い合わせで確かめることがおすすめです。画像だけではわからないヴォルフスガルテン二日市の魅力がきっと見つかります。