リノベ不動産 renove fudosan 日本住を、愉快に。 ローン相談、物件探し、設計・施工、入居後のインテリア提案までリノベ不動産が一貫してサポート。 WEAR_ロゴ 日本住を、愉快に。
  • リノベーション済み物件
  • 中古マンション

第22プリンスマンション

洋室

洋室

洋室

洋室

和室

和室

洋室
洋室
和室
販売価格
1,500 万円
間取り
2LDK
延床面積
64.73㎡(19.58坪)
エリア
福岡県北九州市八幡西区
沿線・最寄駅
筑豊電鉄「萩原」駅 徒歩8分
JR鹿児島本線「陣原」駅 徒歩9分

支払額シミュレーション

第22プリンスマンション

  • 間取り: 2LDK
  • 面積: 19.58坪

中古マンション
販売価格

1,500万円

提携ローン

0.975%

毎月のお支払い 42,168円

物件情報

物件名
第22プリンスマンション
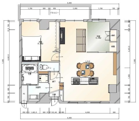
間取り図
間取り図
間取り図
築年月
1981年05月(築44年)
間取り
2LDK
所在階/階数
4階  /  10階建
ガス
都市ガス
販売価格
1,500万円
引渡
2026年03月
取引態様
売主
管理費
月額10,000円
管理形態
自主管理(常駐管理)
修繕積立金
月額7,900円
小学校区
穴生小学校 (約435m)
中学校区
穴生中学校 (約1368m)

共通概要

種別
中古売マンション
所在地
福岡県北九州市八幡西区穴生4丁目9-9
交通
筑豊電鉄「萩原」駅 徒歩8分
JR鹿児島本線「陣原」駅 徒歩9分
構造
SRC
土地権利
所有権
専有面積

合計64.73㎡ 19.58坪
用途地域
商業地域
駐車場
近有 / 月額8,000円 1台 距離 90m
販売戸数
1戸

物件の設備・条件

設備・機能
給湯/都市ガス/全居室フローリング/照明器具付き
バス・トイレ・洗面所
追焚機能
セキュリティー
オートロック/モニタ付インターホン
キッチン
IHクッキングヒータ/システムキッチン/3口以上コンロ/アイランドキッチン
共用設備
宅配BOX/駐輪場
家具・家電・照明
照明器具/人感センサー付照明/ダウンライト
駐車場
来客用駐車場
諸条件・相談
ペット相談
特徴
管理人常駐

広告主の会社情報

店舗名
リノベ不動産|古賀店
会社名
株式会社デザインネットワークアソシエイツ
会社住所
福岡県古賀市久保1254-13
会社電話番号
0120-881-806
免許番号
宅地建物取引業者:福岡県知事免許(02)第018576号 建設業許可:福岡県知事(般-02)第105476号
所属団体

情報公開日・更新予定日

情報公開日
2025/10/20
次回更新予定日
情報提供より8日以内に更新
取引条件有効期限
-

第22プリンスマンション(福岡県北九州市八幡西区)のリノベーション済み中古マンションはいかがでしたか?気になる点は資料請求や問い合わせでチェック!画像だけではわからない第22プリンスマンションの魅力がきっと見つかります。

第22プリンスマンション(福岡県北九州市八幡西区)のリノベーション済み中古マンションの物件情報はいかがでしたか?最新の販売状況の確認やリノベーションのポイントなど、気になる点は資料請求や問い合わせで確かめることがおすすめです。画像だけではわからない第22プリンスマンションの魅力がきっと見つかります。