リノベ不動産 renove fudosan 日本住を、愉快に。 ローン相談、物件探し、設計・施工、入居後のインテリア提案までリノベ不動産が一貫してサポート。 WEAR_ロゴ 日本住を、愉快に。
  • リノベーション向き物件
  • 中古マンション

アンピール教育大前Ⅱ

LDKは約17帖の空間。南西向きで陽当たりの良い室内は明るく開放的な雰囲気です。

LDKは約17帖の空間。南西向きで陽当たりの良い室内は明るく開放的な雰囲気です。

マンション外観です。オートロックやTVモニター付きインターホンなどセキュリティも充実しております。

マンション外観です。オートロックやTVモニター付きインターホンなどセキュリティも充実しております。

LDK別角度です。ガラス戸からはあたたかな光が流れ込んでいます。出窓もついておりインテリアも楽しめそうですね。

LDK別角度です。ガラス戸からはあたたかな光が流れ込んでいます。出窓もついておりインテリアも楽しめそうですね。

キッチンは新品交換済みの対面式システムキッチンです。家事をしながらご家族とのコミュニケーションを楽しめます。

キッチンは新品交換済みの対面式システムキッチンです。家事をしながらご家族とのコミュニケーションを楽しめます。

お風呂も新品交換済みです。落ち着いた色味のアクセントパネルでくつろぎの空間に仕上がっております。

お風呂も新品交換済みです。落ち着いた色味のアクセントパネルでくつろぎの空間に仕上がっております。

洗面台は人気の三面鏡タイプです。朝の身支度もしやすく便利です。収納もしっかりとあるので小物の保管もしやすいです。

洗面台は人気の三面鏡タイプです。朝の身支度もしやすく便利です。収納もしっかりとあるので小物の保管もしやすいです。

トイレも新品交換済みです。白を基調とした清潔感のある空間になりました。

トイレも新品交換済みです。白を基調とした清潔感のある空間になりました。

9階部分の和室約6帖です。襖を開けると隣接するLDKとつながり開放的な空間になります。

9階部分の和室約6帖です。襖を開けると隣接するLDKとつながり開放的な空間になります。

9階洋室約8帖です。壁一面のクローゼットで収納力も高いです。

9階洋室約8帖です。壁一面のクローゼットで収納力も高いです。

10階西側洋室約8帖です。窓からはバルコニーが広がり開放的です。

10階西側洋室約8帖です。窓からはバルコニーが広がり開放的です。

10階東側洋室約8帖。2面採光の明るいお部屋です。クローゼットも壁一面にあり収納力も高いです。

10階東側洋室約8帖。2面採光の明るいお部屋です。クローゼットも壁一面にあり収納力も高いです。

10階部分ルーフバルコニーです。かなりゆとりのある空間でお洗濯ものはもちろん、夏はお子様のプール遊びなど色々な活用が出来そうです。

10階部分ルーフバルコニーです。かなりゆとりのある空間でお洗濯ものはもちろん、夏はお子様のプール遊びなど色々な活用が出来そうです。

10階部分バルコニーです。こちらもゆとりのある広さなのでガーデニングなども楽しめそうです。

10階部分バルコニーです。こちらもゆとりのある広さなのでガーデニングなども楽しめそうです。

9階部分LDK隣接バルコニーです。こちらもゆとりのある広さでお洗濯ものなどもしっかりと干すことが出来ます。

9階部分LDK隣接バルコニーです。こちらもゆとりのある広さでお洗濯ものなどもしっかりと干すことが出来ます。

9階・10階間の室内階段です。明るい雰囲気の素敵な階段ですね。メゾネットタイプの角住戸なので、生活音の心配も少なくリラックスしてお過ごしいただけます。

9階・10階間の室内階段です。明るい雰囲気の素敵な階段ですね。メゾネットタイプの角住戸なので、生活音の心配も少なくリラックスしてお過ごしいただけます。

9階・10階部分のメゾネットタイプの角部屋です。バルコニーもかなり広々としており戸建て感覚でお住まい頂けます。

9階・10階部分のメゾネットタイプの角部屋です。バルコニーもかなり広々としており戸建て感覚でお住まい頂けます。

LDKは約17帖の空間。南西向きで陽当たりの良い室内は明るく開放的な雰囲気です。
マンション外観です。オートロックやTVモニター付きインターホンなどセキュリティも充実しております。
LDK別角度です。ガラス戸からはあたたかな光が流れ込んでいます。出窓もついておりインテリアも楽しめそうですね。
マンション外観です。オートロックやTVモニター付きインターホンなどセキュリティも充実しております。
お風呂も新品交換済みです。落ち着いた色味のアクセントパネルでくつろぎの空間に仕上がっております。
洗面台は人気の三面鏡タイプです。朝の身支度もしやすく便利です。収納もしっかりとあるので小物の保管もしやすいです。
トイレも新品交換済みです。白を基調とした清潔感のある空間になりました。
9階部分の和室約6帖です。襖を開けると隣接するLDKとつながり開放的な空間になります。
9階洋室約8帖です。壁一面のクローゼットで収納力も高いです。
10階西側洋室約8帖です。窓からはバルコニーが広がり開放的です。
10階東側洋室約8帖。2面採光の明るいお部屋です。クローゼットも壁一面にあり収納力も高いです。
10階部分ルーフバルコニーです。かなりゆとりのある空間でお洗濯ものはもちろん、夏はお子様のプール遊びなど色々な活用が出来そうです。
10階部分バルコニーです。こちらもゆとりのある広さなのでガーデニングなども楽しめそうです。
9階部分LDK隣接バルコニーです。こちらもゆとりのある広さでお洗濯ものなどもしっかりと干すことが出来ます。
9階・10階間の室内階段です。明るい雰囲気の素敵な階段ですね。メゾネットタイプの角住戸なので、生活音の心配も少なくリラックスしてお過ごしいただけます。
9階・10階部分のメゾネットタイプの角部屋です。バルコニーもかなり広々としており戸建て感覚でお住まい頂けます。
販売価格
2,499 万円
間取り
4LDK
延床面積
107.36㎡(32.47坪)(壁芯)
エリア
福岡県宗像市
沿線・最寄駅
JR鹿児島本線「教育大前」駅 徒歩9分
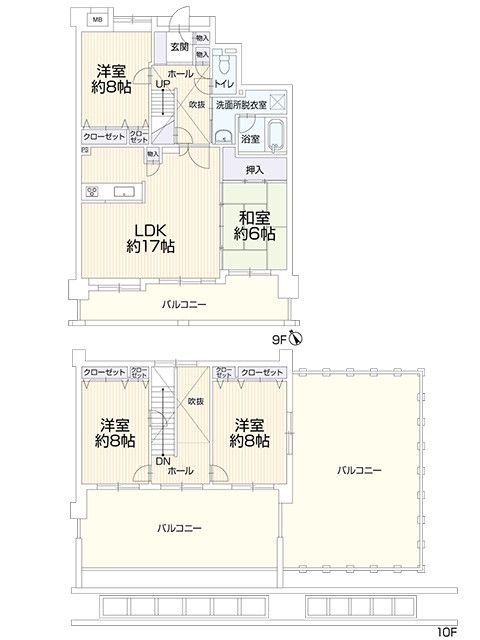
メゾネットタイプで戸建て感覚のマンション♪
10階建ての9・10階部分で眺望・陽当たり・風通しともに良好です!!

■バルコニーは南西向き14.72㎡、10階のルーフバルコニーは66.72㎡とかなり開放的な広さ。お子様のプールやガーデニングなどゆったりと楽しむことが出来ます。
■洋室は全室8帖、和室は6帖と各居室ともにゆとりある間取りです。
■開放的な吹抜け階段に100㎡越えの広々とした間取り。お子様が増えたりなどライフステージの変化にも対応できます。

〈リフォーム 2025年7月 完了〉
■水回り・・・キッチン新品、お風呂新品、トイレ新品、洗面台新品
■内装・・・クロス張替え、コンロ新品、フロアタイル貼り、畳表替え、襖貼替え、網戸貼替え、室内クリーニング、クッションフロア張替え、給湯器交換、建具交換

物件情報

物件名
アンピール教育大前Ⅱ
間取り図
間取り図
間取り図
築年月
1999年02月(築26年)
間取り
4LDK
所在階/階数
9階  /  10階建
ガス
都市ガス
水道
公営水道
汚水
公共下水
販売価格
2,499万円
建ぺい率
60%
容積率
200%
現況
引渡
2025年12月
取引態様
一般
管理費
月額10,100円
管理形態
全部委託(日勤管理)
修繕積立金
月額12,900円
小学校区
赤間小学校 (約1400m)
中学校区
城山中学校 (約600m)

共通概要

種別
中古売マンション
所在地
福岡県宗像市赤間5丁目
交通
JR鹿児島本線「教育大前」駅 徒歩9分
構造
RC
土地権利
所有権
専有面積

合計107.36㎡ 32.47坪 (壁芯)
用途地域
1種住居
都市計画
市街化区域
駐車場
近有 / 月額3,700円 1台
※敷地外駐車場
販売戸数
1戸
月額費用
ルーフバルコニー使用料 : 2,000円

物件の設備・条件

設備・機能
室内洗濯機置場/エレベータ/都市ガス/瑕疵保険付(国交省指定)
バス・トイレ・洗面所
追焚機能/洗髪洗面化粧台/温水洗浄便座
セキュリティー
オートロック/モニタ付インターホン
バルコニー・庭
2面バルコニー/ルーフバルコニー
共用設備
駐輪場
キッチン
食器洗浄乾燥機/システムキッチン/オープンキッチン
立地・環境
日当り良好/閑静な住宅街/角部屋
特徴
管理人日勤

広告主の会社情報

店舗名
リノベ不動産|太宰府インター店
会社名
株式会社オカショー
会社住所
福岡県大野城市東大利 3 丁目 3 番 1 号
会社電話番号
0120-150-573
免許番号
福岡県知事(1)第20102号
所属団体
公益社団法人不動産保証協会福岡県本部
公益社団法人不動産保証協会

情報公開日・更新予定日

情報公開日
2025/09/20
次回更新予定日
情報提供より8日以内に更新
取引条件有効期限
-
単身者向き マンションリノベの話

単身者向き マンションリノベの話

  • リノベ相談会
  • 物件相談
  • ローンセミナー
住宅ローンで損しない攻略セミナー

住宅ローンで損しない攻略セミナー

  • リノベ相談会
  • 物件相談
  • ローンセミナー

アンピール教育大前Ⅱ(福岡県宗像市)のリノベーション向き中古マンションはいかがでしたか?気になる点は資料請求や問い合わせでチェック!画像だけではわからないアンピール教育大前Ⅱの魅力がきっと見つかります。

アンピール教育大前Ⅱ(福岡県宗像市)のリノベーション向き中古マンションの物件情報はいかがでしたか?最新の販売状況の確認やリノベーションのポイントなど、気になる点は資料請求や問い合わせで確かめることがおすすめです。画像だけではわからないアンピール教育大前Ⅱの魅力がきっと見つかります。